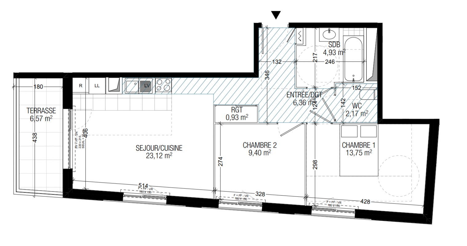
313 479€ (TVA 20%)
275 600€ (TVA 5.5%)
Appt. au 3ème
-
60.66 m²
Sud
Argenteuil (95100)
4ème trimestre 2027
01 81 80 39 10
Présentation du programme "Sileo"
ÉLIGIBLE au dispositif Jeanbrun
DEVENEZ PROPRIETAIRE AVEC LA TVA réduite à 5.5% au lieu de 20%
La résidence Sileo, bénéficie d'un emplacement stratégique au coeur du quartier du Val Notre-Dame.
Emplacement idéal à moins de 300 mètres avec tous les commerces de proximité pharmacie, boulangerie, coiffeur, pressing, tabac, la poste, etc ainsi que son marché avec ses produits frais.
Cette résidence profite de la proximité de divers établissements scolaires et des services de santé.
Alliant matériaux de qualité et conception moderne, Sileo est idéal pour la famille comme les actifs par sa proximité et son accessibilité, le bus ligne 9 au pied de la résidence qui permet de rejoindre la gare Argenteuil en 18 min, desservit par la ligne J pour aller à Saint Lazare en 27 min, possibilité de récupérer également le RER A avec le bus ligne 9 pour aller à la gare de Sartrouville (RER A) en 26 min.
Son architecture gagnée en concours, comporte une venelle paysagée privative reliant l'avenue Jean Jaurès à la rue de l'Union, permettant une circulation agréable et facile pour ses résidents.
Argenteuil offre un cadre dynamique aux portes de Paris tout en restant paisible.
Ses quartiers variés, ses berges de Seine et ses parcs séduisent les familles. Bien desservie par les transports, la ville dispose aussi d'écoles, médiathèques et équipements sportifs. Son ambiance conviviale renforce son attrait résidentiel.
*Les prix affichés tiennent compte de la TVA 5.5%. Voir conditions auprès de nos conseillers
Autres logements - du programme "Sileo"
| Disponibilité | Prix | No | Genre | Pièces | Surface | Étage | Disponibilité | Prix | ||
|---|---|---|---|---|---|---|---|---|---|---|
| Voir | Disponible | 235 564€ | D006 | Appt. | - | 43.97m2 | 0-RDC | Disponible | 235 564€ | Voir |
| Voir | Disponible | 313 479€ | D008 | Appt. | - | 63.83m2 | 0-RDC | Disponible | 313 479€ | Voir |
| Voir | Disponible | 247 052€ | D009 | Appt. | - | 47.86m2 | 0-RDC | Disponible | 247 052€ | Voir |
| Voir | Disponible | 317 232€ | D102 | Appt. | - | 64.38m2 | 1er | Disponible | 317 232€ | Voir |
| Voir | Disponible | 334 408€ | D103 | Appt. | - | 67.24m2 | 1er | Disponible | 334 408€ | Voir |
| Voir | Optionné | 229 991€ | D106 | Appt. | - | 42.12m2 | 1er | Optionné Mais pas encore vendu 😉 | 229 991€ | Voir |
| Voir | Disponible | 303 924€ | D107 | Appt. | - | 61.71m2 | 1er | Disponible | 303 924€ | Voir |
| Voir | Disponible | 230 787€ | D109 | Appt. | - | 43.33m2 | 1er | Disponible | 230 787€ | Voir |
| Voir | Disponible | 328 720€ | D202 | Appt. | - | 63.22m2 | 2ème | Disponible | 328 720€ | Voir |
| Voir | Disponible | 337 251€ | D203 | Appt. | - | 63.88m2 | 2ème | Disponible | 337 251€ | Voir |
| Voir | Disponible | 347 716€ | D205 | Appt. | - | 67.85m2 Le bon plan | 2ème | Disponible | 347 716€ | Voir |
| Voir | Disponible | 323 033€ | D206 | Appt. | - | 64.54m2 | 2ème | Disponible | 323 033€ | Voir |
| Voir | Disponible | 234 654€ | D207 | Appt. | - | 43.33m2 | 2ème | Disponible | 234 654€ | Voir |
| Voir | Disponible | 328 720€ | D306 | Appt. | - | 64.3m2 | 3ème | Disponible | 328 720€ | Voir |
| Voir | Disponible | 238 521€ | D307 | Appt. | - | 43.33m2 | 3ème | Disponible | 238 521€ | Voir |
| Voir | Disponible | 342 028€ | D401 | Appt. | - | 63.41m2 | 4ème | Disponible | 342 028€ | Voir |
| Voir | Disponible | 341 118€ | D403 | Appt. | - | 64.65m2 | 4ème | Disponible | 341 118€ | Voir |