Ce lot n’est plus disponible chez VIANOVA ou est vendu.

Vous pouvez revenir dans 24h pour vérifier le stock à jour ou contacter un conseiller Vianova pour vérifier le stock en direct.
Vous pouvez également continuer votre recherche sur notre site « ici ».

Prix
272 000€  (TVA 20%)
239 133€  (TVA 5.5%)
Type
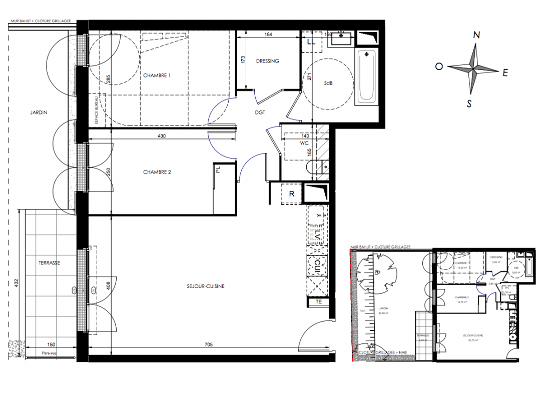
Appt. au 0-RDC
Pièces
T3
Surface
68.4 m²
Exposition
Ouest
Ville
Dammarie-les-Lys (77190)
Livraison
4ème trimestre 2027
Informations
01 81 80 39 10

Présentation du programme "L'Allée de l'Ermitage"

Entre cœur de ville et forêt, une adresse idéale pour votre logement neufCette nouvelle résidence à Dammarie-les-Lys constitue une adresse de choix pour investir en Seine-et-Marne. Voisine de toutes les commodités du centre-ville et à deux pas de la superbe forêt de Fontainebleau, elle offre un cadre serein et attrayant à vos locataires. En lisière de Melun, elle se place au plus proche des centres administratifs et des pôles d’activités qui forment le grand bassin d’emplois de la préfecture. Confortée par la revitalisation du cœur de ville, la restructuration de la gare et l’émergence d’un nouveau centre d’affaires, son attractivité soutient une courbe démographique en hausse constante. La promesse d’une forte demande locative et d’une belle valorisation patrimoniale pour cette adresse éligible aux avantages fiscaux du dispositif Pinel (zone A). * Source : Google Maps* * Sous réserve de conditions

Autres logements T3 du programme "L'Allée de l'Ermitage"

Disponibilité Prix Genre Pièces Surface Étage
Voir
Disponible
243 000€ Appt. T3 58.2m2 2ème