Prix
222 000€
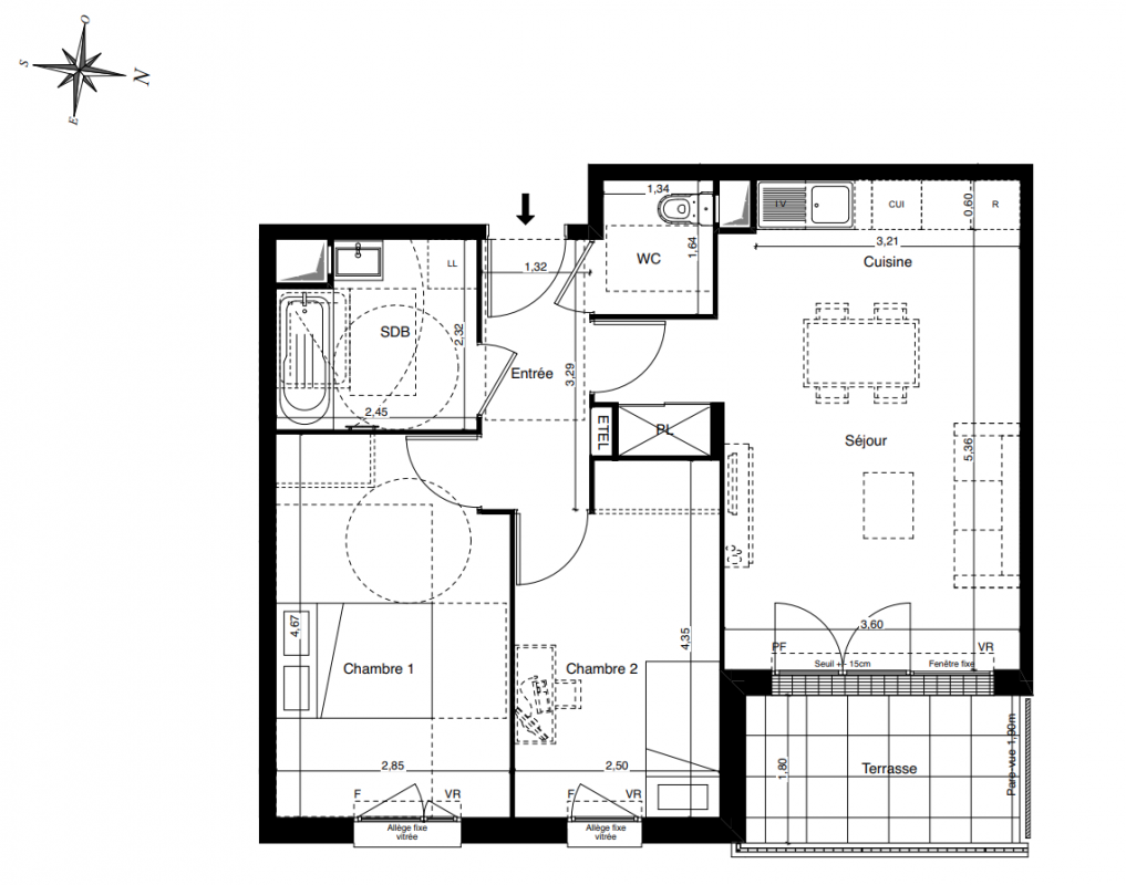
Type
Appt. au 1er
Pièces
T3
Surface
58 m²
Exposition
Est
Ville
Coulommiers (77120)
Livraison
1er trimestre 2026
Informations
01 81 80 39 10

Présentation du programme "TERRASSES DE VAUX"

Autres logements T3 du programme "TERRASSES DE VAUX"

Pas de logements disponibles
DO NOT CLICK