Prix
499 000€
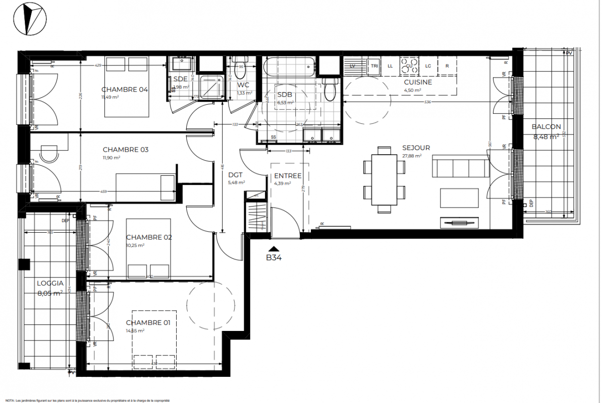
Type
Appt. au 3ème
Pièces
T5
Surface
100.38 m²
Exposition
-
Ville
Bussy-Saint-Georges (77600)
Livraison
3ème trimestre 2028
Informations
01 81 80 39 10

Présentation du programme "Le Georges"

Les appartements du Georges sont conçus pour répondre aux attentes de tous les styles de vie. Du studio au 5 pièces duplex, chaque logement offre de beaux volumes, des prestations haut de gamme et des extérieurs (balcon, terrasse ou jardin privatif). Un soin particulier a été apporté au confort thermique et acoustique, dans le respect des dernières normes environnementales.

Autres logements T5 du programme "Le Georges"

Disponibilité Prix Genre Pièces Surface Étage
Voir
Disponible
495 000€ Appt. T5 100.38m2 2ème
Voir
Disponible
490 000€ Appt. T5 100.38m2
Le bon plan
1er
DO NOT CLICK