235 000€ (TVA 20%)
215 417€ (TVA 10%)
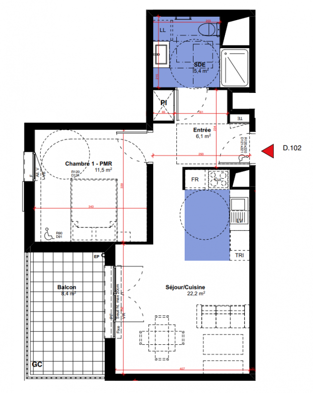
Appt. au 1er
T2
45.2 m²
-
Bussy-Saint-Georges (77600)
4ème trimestre 2027
01 81 80 39 10
Présentation du programme "Impulsion"
Impulsez une nouvelle qualité de vie à Bussy-Saint-Georges
Nichée au coeur de l'écoquartier du Sycomore, la résidence Impulsion s'intègre dans un cadre paysager généreux et apaisé. Ses lignes architecturales élégantes, rythmées par des matériaux naturels et des teintes douces, dialoguent harmonieusement avec la végétation environnante.
Les appartements, du studio au 5 pièces duplex, sont pensés pour s'adapter à tous les styles de vie. Lumineux et fonctionnels, ils s'ouvrent largement sur l'extérieur grâce à des balcons, terrasses ou jardins privatifs, pour profiter de chaque saison.
Le Sycomore est un quartier éco-responsable et convivial, offrant commerces, restaurants, groupes scolaires, pôle médical et espaces verts. Conçu comme un véritable quartier-jardin, il favorise la biodiversité, la mobilité douce et la convivialité entre habitants.
À quelques minutes en vélo de la gare RER A de Bussy-Saint-Georges et des principaux axes routiers (A4, A104), la résidence bénéficie d'une accessibilité optimale vers Paris, Marne-la-Vallée et Disneyland Paris.
Impulsion conjugue modernité, confort et respect de l'environnement, grâce à des prestations de qualité et des labels exigeants (RE2020 seuil 2025, NF Habitat Très Performant, Bâtiment biosourcé).
Autres logements T2 du programme "Impulsion"
| Disponibilité | Prix | No | Genre | Pièces | Surface | Étage | Disponibilité | Prix | ||
|---|---|---|---|---|---|---|---|---|---|---|
| Voir | Optionné | 225 000€ | D002 | Appt. | T2 | 39.9m2 | 0-RDC | Optionné Mais pas encore vendu 😉 | 225 000€ | Voir |
| Voir | Optionné | 224 000€ | D203 | Appt. | T2 | 40.4m2 | 2ème | Optionné Mais pas encore vendu 😉 | 224 000€ | Voir |
| Voir | Disponible | 226 000€ | D303 | Appt. | T2 | 40.4m2 | 3ème | Disponible | 226 000€ | Voir |
| Voir | Disponible | 227 000€ | D403 | Appt. | T2 | 40.4m2 | 4ème | Disponible | 227 000€ | Voir |
| Voir | Disponible | 222 000€ | D103 | Appt. | T2 | 40.6m2 | 1er | Disponible | 222 000€ | Voir |
| Voir | Disponible | 229 000€ | A001 | Appt. | T2 | 43.9m2 | 0-RDC | Disponible | 229 000€ | Voir |
| Voir | Disponible | 221 000€ | A203 | Appt. | T2 | 44.5m2 | 2ème | Disponible | 221 000€ | Voir |
| Voir | Disponible | 238 000€ | D202 | Appt. | T2 | 45.2m2 | 2ème | Disponible | 238 000€ | Voir |
| Voir | Disponible | 242 000€ | D402 | Appt. | T2 | 45.3m2 | 4ème | Disponible | 242 000€ | Voir |
| Voir | Disponible | 240 000€ | D302 | Appt. | T2 | 45.3m2 | 3ème | Disponible | 240 000€ | Voir |
| Voir | Disponible | 248 000€ | A003 | Appt. | T2 | 45.7m2 | 0-RDC | Disponible | 248 000€ | Voir |