323 000€ (TVA 20%)
296 083€ (TVA 10%)
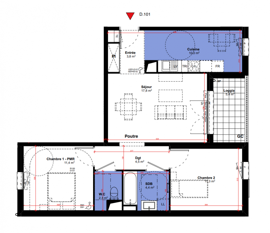
Appt. au 1er
T3
65.5 m²
-
Bussy-Saint-Georges (77600)
4ème trimestre 2027
01 81 80 39 10
Présentation du programme "Impulsion"
Impulsez une nouvelle qualité de vie à Bussy-Saint-Georges
Nichée au coeur de l'écoquartier du Sycomore, la résidence Impulsion s'intègre dans un cadre paysager généreux et apaisé. Ses lignes architecturales élégantes, rythmées par des matériaux naturels et des teintes douces, dialoguent harmonieusement avec la végétation environnante.
Les appartements, du studio au 5 pièces duplex, sont pensés pour s'adapter à tous les styles de vie. Lumineux et fonctionnels, ils s'ouvrent largement sur l'extérieur grâce à des balcons, terrasses ou jardins privatifs, pour profiter de chaque saison.
Le Sycomore est un quartier éco-responsable et convivial, offrant commerces, restaurants, groupes scolaires, pôle médical et espaces verts. Conçu comme un véritable quartier-jardin, il favorise la biodiversité, la mobilité douce et la convivialité entre habitants.
À quelques minutes en vélo de la gare RER A de Bussy-Saint-Georges et des principaux axes routiers (A4, A104), la résidence bénéficie d'une accessibilité optimale vers Paris, Marne-la-Vallée et Disneyland Paris.
Impulsion conjugue modernité, confort et respect de l'environnement, grâce à des prestations de qualité et des labels exigeants (RE2020 seuil 2025, NF Habitat Très Performant, Bâtiment biosourcé).
Autres logements T3 du programme "Impulsion"
| Disponibilité | Prix | No | Genre | Pièces | Surface | Étage | Disponibilité | Prix | ||
|---|---|---|---|---|---|---|---|---|---|---|
| Voir | Disponible | 326 000€ | D201 | Appt. | T3 | 65.5m2 | 2ème | Disponible | 326 000€ | Voir |
| Voir | Disponible | 330 000€ | D401 | Appt. | T3 | 65.5m2 | 4ème | Disponible | 330 000€ | Voir |
| Voir | Disponible | 328 000€ | D301 | Appt. | T3 | 65.5m2 | 3ème | Disponible | 328 000€ | Voir |
| Voir | Disponible | 338 000€ | A102 | Appt. | T3 | 68.6m2 | 1er | Disponible | 338 000€ | Voir |
| Voir | Disponible | 341 000€ | A202 | Appt. | T3 | 68.6m2 | 2ème | Disponible | 341 000€ | Voir |
| Voir | Disponible | 361 000€ | A002 | Appt. | T3 | 69.1m2 | 1er | Disponible | 361 000€ | Voir |
| Voir | Disponible | 341 000€ | D404 | Appt. | T3 | 73.9m2 | 4ème | Disponible | 341 000€ | Voir |