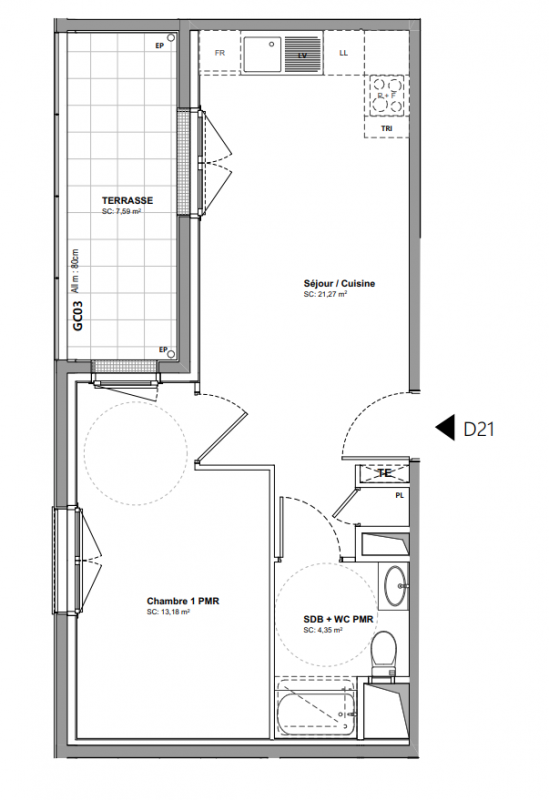
192 000€
Appt. au 2ème
T2
38.8 m²
Nord-Ouest
Marseille 14ème (13014)
2ème trimestre 2027
01 81 80 39 10
Présentation du programme "La Canopée"
Programme immobilier neuf à Marseille 14e – Résidence La CanopéeVous rêvez de vivre à Marseille côté nature ? Découvrez La Canopée, une nouvelle résidence située au pied du Massif de l'Étoile, dans un cadre verdoyant exceptionnel.Nichée dans les hauteurs du quartier Sainte-Marthe à Marseille 14e, la résidence bénéficie d'un environnement privilégié, au cœur de la nature tout en restant proche de toutes les commodités essentielles : écoles, commerces, transports et services.La Canopée propose des appartements neufs du studio au 5 pièces duplex, conçus dans un écrin de verdure paysager. Chaque logement est prolongé par un espace extérieur privatif, qu'il s'agisse d'un balcon, d'une terrasse ou d'un jardin, avec pour certains des vues dégagées sur le Massif de l'Étoile, la colline de la Bonne Mère ou la mer Méditerranée.À l'intérieur, les appartements offrent des volumes spacieux et lumineux, avec une hauteur sous plafond de 2,70 m et de grandes baies vitrées laissant entrer un maximum de lumière naturelle.Conformes à la réglementation thermique RE2020, les logements bénéficient d'une isolation performante et d'un chauffage par pompe à chaleur, garantissant confort et économies d'énergie au quotidien.Sous conditions de ressources et d'éligibilité, vous pouvez bénéficier du Prêt à Taux Zéro (PTZ) à 0 %, un réel coup de pouce pour acheter votre résidence principale à Marseille dans des conditions avantageuses.Découvrez également nos appartements Evoluvie, un concept novateur breveté permettant de transformer un T3 en T1 + T2. Une modularité unique, totalement réversible selon l'évolution de votre projet de vie ou dans une optique de revente. Les prix affichés sont hors stationnement. Pour plus d'informations ou pour recevoir la brochure du programme, inscrivez-vous ou contactez-nous.
Autres logements T2 du programme "La Canopée"
| Disponibilité | Prix | No | Genre | Pièces | Surface | Étage | Disponibilité | Prix | ||
|---|---|---|---|---|---|---|---|---|---|---|
| Voir | Disponible | 193 000€ | E12 | Appt. | T2 | 39.03m2 | 1er | Disponible | 193 000€ | Voir |
| Voir | Disponible | 195 000€ | D23 | Appt. | T2 | 40.14m2 | 2ème | Disponible | 195 000€ | Voir |
| Voir | Disponible | 197 000€ | E22 | Appt. | T2 | 38.64m2 | 2ème | Disponible | 197 000€ | Voir |
| Voir | Disponible | 204 000€ | D31 | Appt. | T2 | 38.61m2 | 3ème | Disponible | 204 000€ | Voir |
| Voir | Disponible | 194 000€ | D33 | Appt. | T2 | 37.72m2 | 3ème | Disponible | 194 000€ | Voir |
| Voir | Disponible | 237 000€ | E33 | Appt. | T2 | 56.38m2 | 3ème | Disponible | 237 000€ | Voir |
| Voir | Disponible | 229 000€ | E14 | Appt. | T2 | 57.06m2 | 1er | Disponible | 229 000€ | Voir |
| Voir | Disponible | 237 000€ | E24 | Appt. | T2 | 57.06m2 | 2ème | Disponible | 237 000€ | Voir |
| Voir | Disponible | 192 000€ | E16 | Appt. | T2 | 37.79m2 | 1er | Disponible | 192 000€ | Voir |
| Voir | Disponible | 196 000€ | E26 | Appt. | T2 | 37.79m2 | 2ème | Disponible | 196 000€ | Voir |