Prix
253 000€
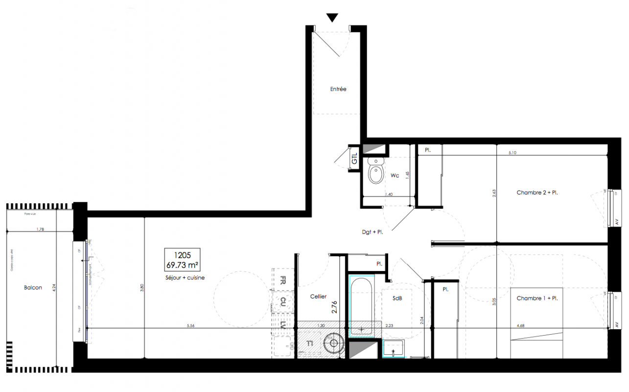
Type
Appt. au 2ème
Pièces
T4
Surface
85 m²
Exposition
-
Ville
L'Huisserie (53119)
Livraison
4ème trimestre 2027
Informations
01 81 80 39 10

Présentation du programme "BEAUMANOIR"

Autres logements T4 du programme "BEAUMANOIR"

Pas de logements disponibles
DO NOT CLICK