Ce lot n’est plus disponible chez VIANOVA ou est vendu.

Vous pouvez revenir dans 24h pour vérifier le stock à jour ou contacter un conseiller Vianova pour vérifier le stock en direct.
Vous pouvez également continuer votre recherche sur notre site « ici ».

Prix
244 000€
Type
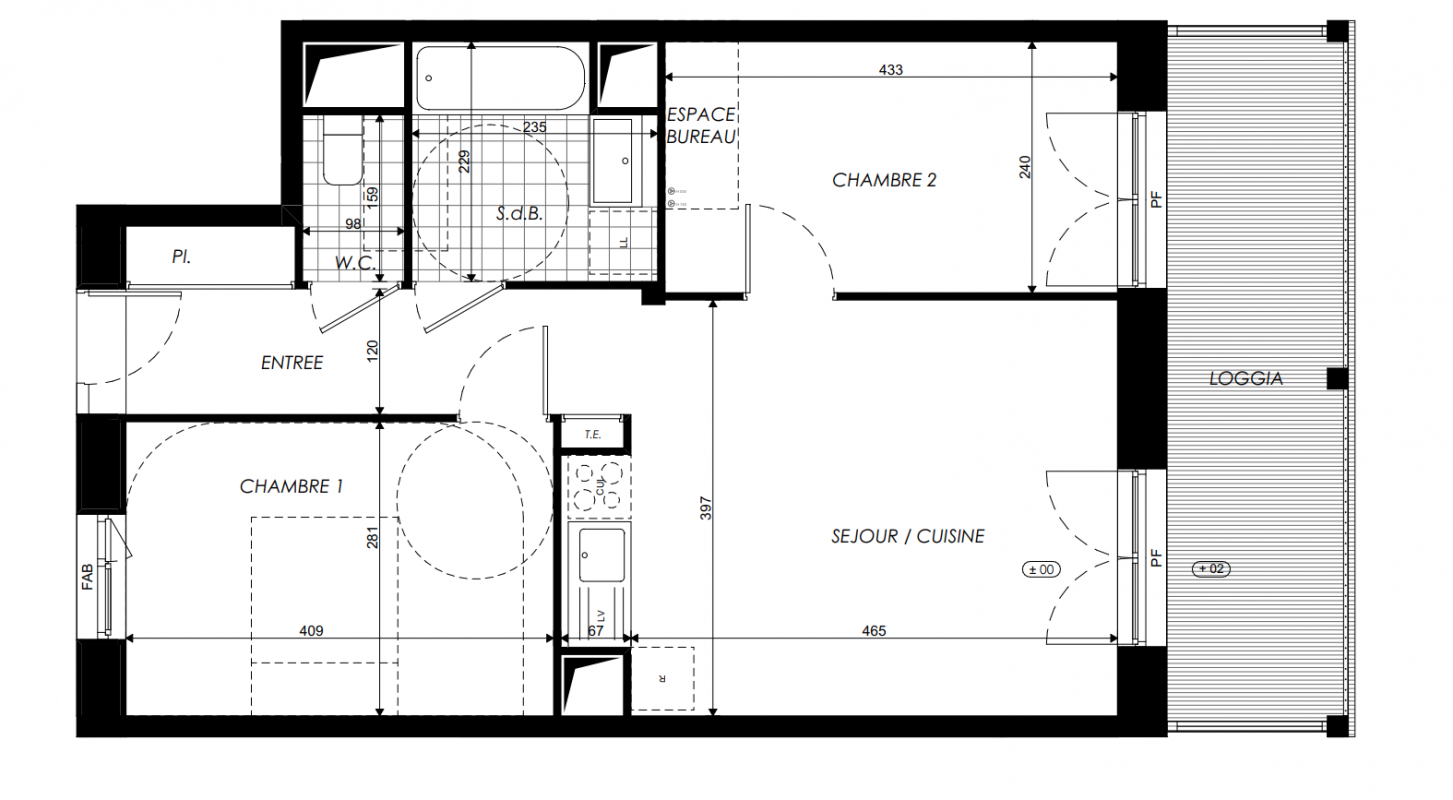
Appt. au 1er
Pièces
T3
Surface
55.12 m²
Exposition
Est
Ville
Laval (53000)
Livraison
3ème trimestre 2029
Informations
01 81 80 39 10

Présentation du programme "Cour St Mathurin"

Au cœur de Laval, une résidence chargée d’histoire
À quelques pas des rives de la Mayenne et de la place du 11 Novembre, découvrez une résidence inédite mêlant avec harmonie construction neuve et réhabilitation de bâtiments historiques. Dans cet environnement au patrimoine médiéval classé, découvrez le charme de l’ancien rénové avec des méthodes traditionnelles et écologiques et le confort écoresponsable d’une construction neuve à ossature bois. Du studio au 4 pièces, laissez-vous séduire par l’offre exclusive d’agencements et de plans, avec des appartements disposant de hauteur sous plafond exceptionnelles, jusqu’à 3,4 m. de plus ils peuvent vous faire bénéficier du dispositif « Denormandie »  Dans les bâtiments neufs, balcons et terrasses prolongent tous les intérieurs. Une adresse qui comblera les amateurs d’architecture noble, et qui profite de l’un des meilleurs emplacements de la ville. 

Autres logements T3 du programme "Cour St Mathurin"

Pas de logements disponibles