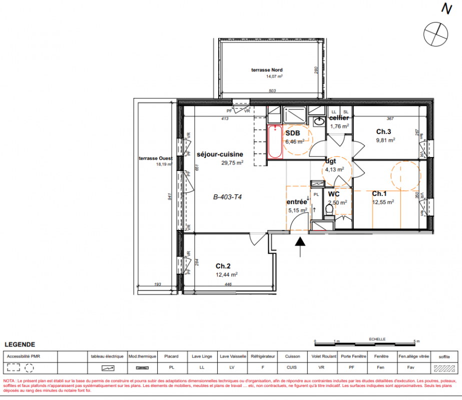
Prix
319 000€ (TVA 20%)
292 417€ (TVA 10%)
319 000€ (TVA 20%)
292 417€ (TVA 10%)
Type
Appt. au 4ème
Appt. au 4ème
Pièces
T4
T4
Surface
84.55 m²
84.55 m²
Exposition
-
-
Ville
Angers (49000)
Angers (49000)
Livraison
4ème trimestre 2025
4ème trimestre 2025
Informations
01 81 80 39 10
01 81 80 39 10
Présentation du programme "BoTerra"
Ici, habitat, petite enfance et artisanat cohabitent en totale harmonie. La résidence BO TERRA fait la part belle à la mixité des usages avec ses 2 îlots qui accueillent chacun 42 et 26 appartements du studio au 4 pièces, une crèche de 350m² et des locaux dédiés à l'artisanat. Les appartements bénéficient soit d'un balcon, d'une loggia, d'une terrasse ou d'un jardin privatif. Cet ensemble immobilier a été pensé dans un cadre particulièrement verdoyant bénéficiant de potager partagé et d'un coeur d'îlot arboré. Imaginé comme un véritable parc habité, cet écoquartier nouvelle génération met à l'honneur la nature dans tous ses états et offre à Angers une seconde jeunesse !