Ce lot n’est plus disponible chez VIANOVA ou est vendu.
Vous pouvez revenir dans 24h pour vérifier le stock à jour ou contacter un conseiller Vianova pour vérifier le stock en direct.
Vous pouvez également continuer votre recherche sur notre site « ici ».
Prix
251 000€ (TVA 20%)
230 083€ (TVA 10%)
251 000€ (TVA 20%)
230 083€ (TVA 10%)
Type
Appt. au 1er
Appt. au 1er
Pièces
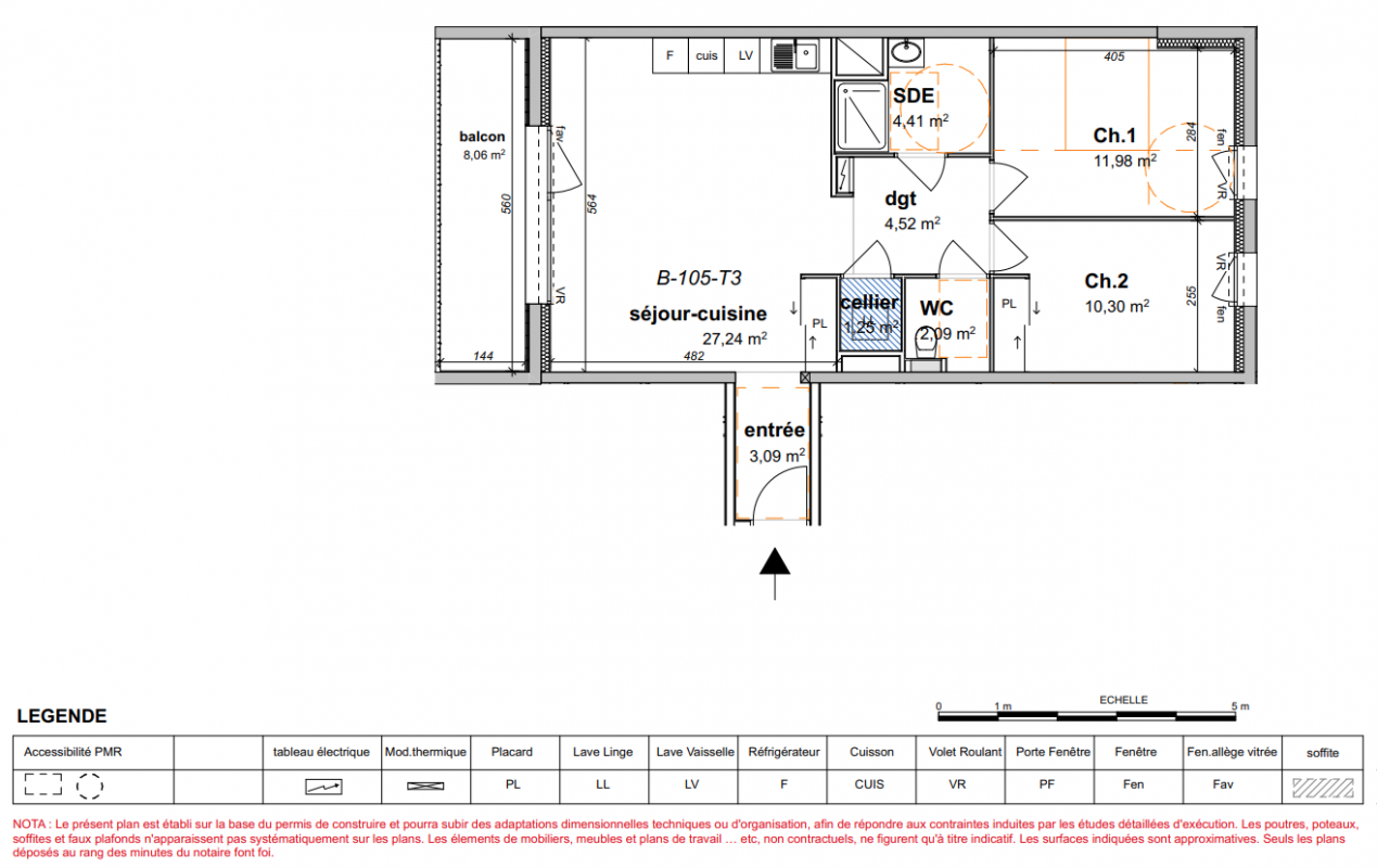
T3
T3
Surface
64.88 m²
64.88 m²
Exposition
-
-
Ville
Angers (49000)
Angers (49000)
Livraison
4ème trimestre 2025
4ème trimestre 2025
Informations
01 81 80 39 10
01 81 80 39 10
Présentation du programme "BoTerra"
Ici, habitat, petite enfance et artisanat cohabitent en totale harmonie. La résidence BO TERRA fait la part belle à la mixité des usages avec ses 2 îlots qui accueillent chacun 42 et 26 appartements du studio au 4 pièces, une crèche de 350m² et des locaux dédiés à l'artisanat. Les appartements bénéficient soit d'un balcon, d'une loggia, d'une terrasse ou d'un jardin privatif. Cet ensemble immobilier a été pensé dans un cadre particulièrement verdoyant bénéficiant de potager partagé et d'un coeur d'îlot arboré. Imaginé comme un véritable parc habité, cet écoquartier nouvelle génération met à l'honneur la nature dans tous ses états et offre à Angers une seconde jeunesse !
Autres logements T3 du programme "BoTerra"
| Disponibilité | Prix | No | Genre | Pièces | Surface | Étage | Disponibilité | Prix | ||
|---|---|---|---|---|---|---|---|---|---|---|
| Voir | Disponible | 243 000€ | A108 | Appt. | T3 | 60.47m2 | 1er | Disponible | 243 000€ | Voir |
| Voir | Disponible | 248 000€ | B201 | Appt. | T3 | 62.55m2 | 2ème | Disponible | 248 000€ | Voir |
| Voir | Disponible | 247 000€ | B101 | Appt. | T3 | 62.56m2 | 1er | Disponible | 247 000€ | Voir |
| Voir | Disponible | 251 000€ | B04 | Appt. | T3 | 65.11m2 | 0-RDC | Disponible | 251 000€ | Voir |
| Voir | Disponible | 252 000€ | A106 | Appt. | T3 | 65.58m2 | 1er | Disponible | 252 000€ | Voir |
| Voir | Optionné | 253 000€ | A03 | Appt. | T3 | 66.09m2 | 0-RDC | Optionné Mais pas encore vendu 😉 | 253 000€ | Voir |
| Voir | Optionné | 256 000€ | A107 | Appt. | T3 | 66.11m2 | 1er | Optionné Mais pas encore vendu 😉 | 256 000€ | Voir |