Prix
331 000€
Type
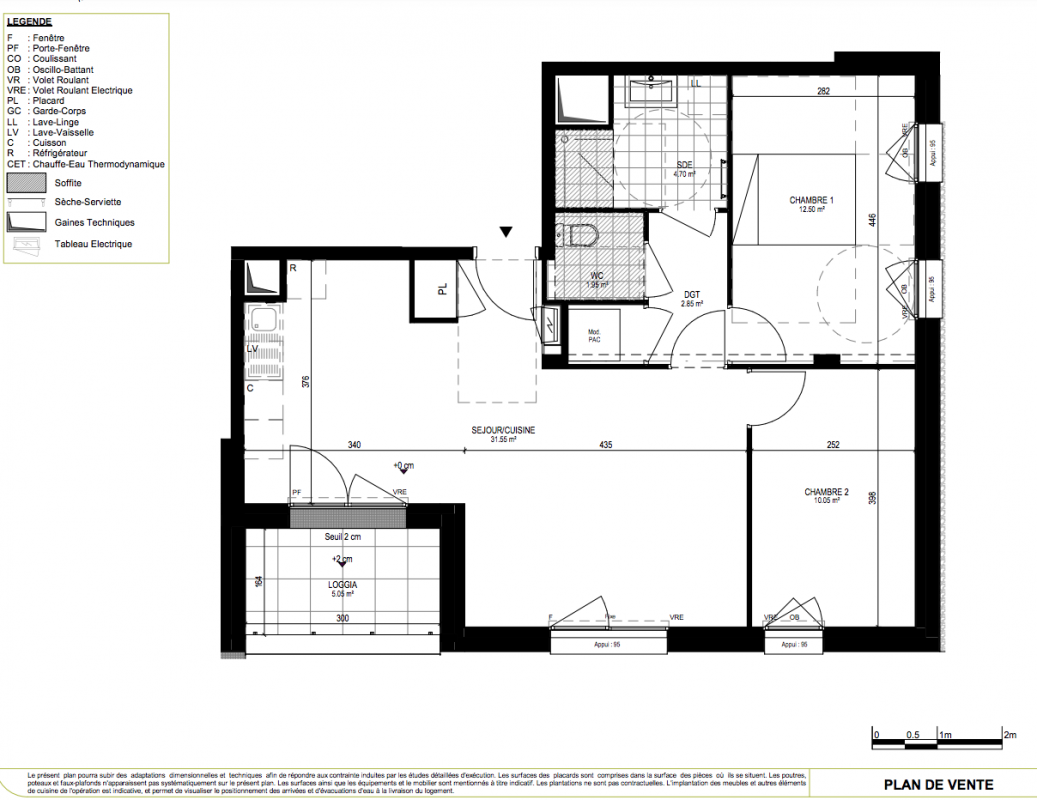
Appt. au 0-RDC
Pièces
T3
Surface
64.7 m²
Exposition
-
Ville
Pornichet (44380)
Livraison
1er trimestre 2027
Informations
01 81 80 39 10

Présentation du programme "Jardin d'Epona - PORNICHET"

***COMMISSION 6%***
FRAIS DE NOTAIRE OFFERTS
Découvrez Jardin d'Epona, la nouvelle réalisation Nacarat, située à Pornichet, à quelques minutes à pied du centre-ville et de la plage des libraires. La résidence propose des appartements du studio au 4 pièces avec balcon, terrasse ou jardin ainsi que deux maisons 4 et 5 pièces avec jardin, et offre un grand jardin commun.

Découvrez les prestations de qualité : local de retour de plage, chauffage par pompe à chaleur, cuisines équipées pour les studios et 2 pièces, volets roulants électriques dans toutes les pièces, une ou deux places de parking pour chaque logement, ascenseur, etc. Idéal pour investir ou pour habiter grâce au Prêt à Taux Zéro.* Voir les conditions au près de votre conseiller commercial.

Autres logements T3 du programme "Jardin d'Epona - PORNICHET"

Disponibilité Prix Genre Pièces Surface Étage
Voir
Disponible
340 000€ Appt. T3 65m2 0-RDC
DO NOT CLICK