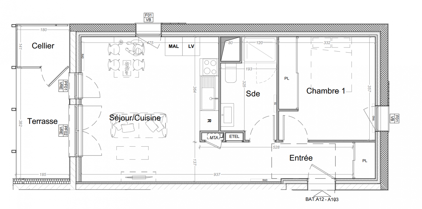
268 000€
Appt. au 1er
T2
48.28 m²
-
Pornic (44210)
3ème trimestre 2028
01 81 80 39 10
Présentation du programme "LE DOMAINE DU PARC"
Vivre entre nature et océan, c'est profiter d'un environnement sain, apaisant et stimulant, où chaque journée offre la possibilité de se reconnecter à l'essentiel. C'est faire le choix d'une qualité de vie, à la fois active et sereine, dans un cadre inspirant et ressourçant. À seulement 500 mètres du bourg du Clion-sur-Mer, la Corbinière est un quartier en plein développement qui vise à créer un nouveau cadre de vie attractif. LE DOMAINE DU PARC bénéficie d'un emplacement privilégié : À 13 minutes à vélo du vieux port et de la gare de Pornic, à 8 minutes du centre commercial, à 16 minutes des plages. LE DOMAINE DU PARC offre un accès rapide à tous les services du quotidien :
école, commerces, transports scolaires... Choisir LE DOMAINE DU PARC, c'est opter pour un habitat lumineux, économe en énergie et respectueux de l'environnement. Les bâtiments intègrent des matériaux biosourcés issus de filières locales (béton de bois, isolant en fibres végétales) et une conception bioclimatique garantissant : un confort thermique d'été et d'hiver, un confort acoustique optimal, une réduction de la consommation énergétique de 20 à 40 %, des économies concrètes sur le chauffage et 100% des logements traversants avec triple ou double orientation minimum.
Autres logements T2 du programme "LE DOMAINE DU PARC"
| Disponibilité | Prix | No | Genre | Pièces | Surface | Étage | Disponibilité | Prix | ||
|---|---|---|---|---|---|---|---|---|---|---|
| Voir | Disponible | 257 200€ | B12 B103 | Appt. | T2 | 43.59m2 | 1er | Disponible | 257 200€ | Voir |
| Voir | Disponible | 258 500€ | B12 B202 | Appt. | T2 | 43.59m2 | 2ème | Disponible | 258 500€ | Voir |
| Voir | Disponible | 239 300€ | B12 B203 | Appt. | T2 | 43.59m2 | 0-RDC | Disponible | 239 300€ | Voir |
| Voir | Disponible | 254 500€ | B12 B003 | Appt. | T2 | 44.08m2 | 0-RDC | Disponible | 254 500€ | Voir |
| Voir | Disponible | 256 000€ | A14 A001 | Appt. | T2 | 45.66m2 | 0-RDC | Disponible | 256 000€ | Voir |
| Voir | Disponible | 233 900€ | B15 B103 | Appt. | T2 | 45.96m2 | 1er | Disponible | 233 900€ | Voir |
| Voir | Disponible | 237 800€ | B15 B203 | Appt. | T2 | 45.98m2 | 2ème | Disponible | 237 800€ | Voir |
| Voir | Disponible | 266 200€ | A12 A202 | Appt. | T2 | 46.38m2 | 2ème | Disponible | 266 200€ | Voir |
| Voir | Disponible | 266 400€ | A12 A102 | Appt. | T2 | 46.42m2 | 1er | Disponible | 266 400€ | Voir |
| Voir | Disponible | 253 100€ | B15 B003 | Appt. | T2 | 46.47m2 | 0-RDC | Disponible | 253 100€ | Voir |
| Voir | Disponible | 246 300€ | A15 A102 | Appt. | T2 | 46.93m2 | 1er | Disponible | 246 300€ | Voir |
| Voir | Disponible | 270 800€ | A12 A002 | Appt. | T2 | 47.08m2 | 0-RDC | Disponible | 270 800€ | Voir |
| Voir | Disponible | 249 400€ | A15 A202 | Appt. | T2 | 47.11m2 | 2ème | Disponible | 249 400€ | Voir |
| Voir | Disponible | 260 900€ | A15 A002 | Appt. | T2 | 47.18m2 | 0-RDC | Disponible | 260 900€ | Voir |
| Voir | Disponible | 270 800€ | A12 A003 | Appt. | T2 | 47.39m2 | 0-RDC | Disponible | 270 800€ | Voir |
| Voir | Disponible | 268 000€ | A12 A203 | Appt. | T2 | 48.58m2 | 2ème | Disponible | 268 000€ | Voir |
| Voir | Disponible | 256 200€ | B12 B102 | Appt. | T2 | 48.64m2 | 1er | Disponible | 256 200€ | Voir |
| Voir | Disponible | 266 900€ | B12 B002 | Appt. | T2 | 49.18m2 | 0-RDC | Disponible | 266 900€ | Voir |
| Voir | Disponible | 260 900€ | B15 B002 | Appt. | T2 | 49.2m2 | 0-RDC | Disponible | 260 900€ | Voir |
| Voir | Disponible | 248 900€ | B15 B102 | Appt. | T2 | 49.5m2 | 1er | Disponible | 248 900€ | Voir |
| Voir | Disponible | 251 100€ | B15 B202 | Appt. | T2 | 49.5m2 | 2ème | Disponible | 251 100€ | Voir |