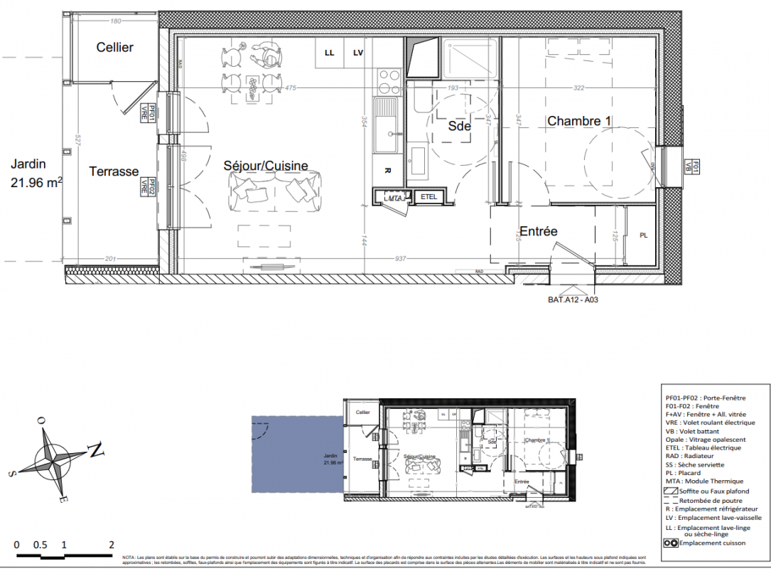
270 800€
Appt. au 0-RDC
-
47.39 m²
-
Pornic (44210)
2ème trimestre 2028
01 81 80 39 10
Présentation du programme "LE DOMAINE DU PARC"
FRAIS DE NOTAIRE OFFERTS + REMISE DE 3 000 EUROS PAR PIECE *
Vivre entre nature et océan, c'est profiter d'un environnement sain, apaisant et stimulant, où chaque journée offre la possibilité de se reconnecter à l'essentiel. C'est faire le choix d'une qualité de vie, à la fois active et sereine, dans un cadre inspirant et ressourçant. À seulement 500 mètres du bourg du Clion-sur-Mer, la Corbinière est un quartier en plein développement qui vise à créer un nouveau cadre de vie attractif. LE DOMAINE DU PARC bénéficie d'un emplacement privilégié : À 13 minutes à vélo du vieux port et de la gare de Pornic, à 8 minutes du centre commercial, à 16 minutes des plages. LE DOMAINE DU PARC offre un accès rapide à tous les services du quotidien :
école, commerces, transports scolaires... Choisir LE DOMAINE DU PARC, c'est opter pour un habitat lumineux, économe en énergie et respectueux de l'environnement. Les bâtiments intègrent des matériaux biosourcés issus de filières locales (béton de bois, isolant en fibres végétales) et une conception bioclimatique garantissant : un confort thermique d'été et d'hiver, un confort acoustique optimal, une réduction de la consommation énergétique de 20 à 40 %, des économies concrètes sur le chauffage et 100% des logements traversants avec triple ou double orientation minimum.
* Offres promotionnelles valables du 01/03/2026 au 31/05/2026 inclus, dans la limite des stocks disponibles, sous réserve de la signature d'un contrat de réservation d'un logement SPIRIT. Offres non cumulables avec toute autre offre en cours ou à venir. Les frais de notaire sont pris en charge par la SCI, hors frais d'hypothèque, de garantie bancaire et de règlement de copropriété. Remise d'un montant de 3 000 € par pièce principale (pièce hors cuisine et hors salle de bains), soit 6000 € pour un T2, 9 000 € pour un T3, 12 000 € pour un T4 et 15 000 € pour un T5. Ces remises sont calculées sur la base du prix de vente TTC figurant sur la grille de prix selon le taux de TVA en vigueur et consenties dans le cadre d'un avenant au contrat de réservation.
Autres logements - du programme "LE DOMAINE DU PARC"
| Disponibilité | Prix | No | Genre | Pièces | Surface | Étage | Disponibilité | Prix | ||
|---|---|---|---|---|---|---|---|---|---|---|
| Voir | Disponible | 427 600€ | A12 A001 | Appt. | - | 81.37m2 | 0-RDC | Disponible | 427 600€ | Voir |
| Voir | Disponible | 270 800€ | A12 A002 | Appt. | - | 47.08m2 | 0-RDC | Disponible | 270 800€ | Voir |
| Voir | Disponible | 408 100€ | A12 A101 | Appt. | - | 82.79m2 | 1er | Disponible | 408 100€ | Voir |
| Voir | Disponible | 266 400€ | A12 A102 | Appt. | - | 46.42m2 | 1er | Disponible | 266 400€ | Voir |
| Voir | Disponible | 268 000€ | A12 A103 | Appt. | - | 48.28m2 | 1er | Disponible | 268 000€ | Voir |
| Voir | Disponible | 411 900€ | A12 A201 | Appt. | - | 82.79m2 | 2ème | Disponible | 411 900€ | Voir |
| Voir | Disponible | 266 200€ | A12 A202 | Appt. | - | 46.38m2 | 2ème | Disponible | 266 200€ | Voir |
| Voir | Disponible | 268 000€ | A12 A203 | Appt. | - | 48.58m2 | 2ème | Disponible | 268 000€ | Voir |
| Voir | Disponible | 373 100€ | B12 B001 | Appt. | - | 65.67m2 | 0-RDC | Disponible | 373 100€ | Voir |
| Voir | Disponible | 266 900€ | B12 B002 | Appt. | - | 49.18m2 | 0-RDC | Disponible | 266 900€ | Voir |
| Voir | Disponible | 254 500€ | B12 B003 | Appt. | - | 44.08m2 | 0-RDC | Disponible | 254 500€ | Voir |
| Voir | Disponible | 342 700€ | B12 B004 | Appt. | - | 65m2 | 0-RDC | Disponible | 342 700€ | Voir |
| Voir | Disponible | 352 600€ | B12 B101 | Appt. | - | 66.81m2 | 1er | Disponible | 352 600€ | Voir |
| Voir | Disponible | 256 200€ | B12 B102 | Appt. | - | 48.64m2 | 1er | Disponible | 256 200€ | Voir |
| Voir | Disponible | 257 200€ | B12 B103 | Appt. | - | 43.59m2 | 1er | Disponible | 257 200€ | Voir |
| Voir | Disponible | 330 500€ | B12 B104 | Appt. | - | 66.1m2 | 1er | Disponible | 330 500€ | Voir |
| Voir | Disponible | 333 600€ | B12 B201 | Appt. | - | 66.78m2 | 2ème | Disponible | 333 600€ | Voir |
| Voir | Disponible | 258 500€ | B12 B202 | Appt. | - | 43.59m2 | 2ème | Disponible | 258 500€ | Voir |
| Voir | Disponible | 239 300€ | B12 B203 | Appt. | - | 43.59m2 | 0-RDC | Disponible | 239 300€ | Voir |
| Voir | Disponible | 330 600€ | B12 B204 | Appt. | - | 66.12m2 | 2ème | Disponible | 330 600€ | Voir |
| Voir | Disponible | 256 000€ | A14 A001 | Appt. | - | 45.66m2 | 0-RDC | Disponible | 256 000€ | Voir |
| Voir | Disponible | 334 200€ | A14 A002 | Appt. | - | 65.04m2 | 0-RDC | Disponible | 334 200€ | Voir |
| Voir | Disponible | 331 900€ | A14 A003 | Appt. | - | 64.56m2 | 0-RDC | Disponible | 331 900€ | Voir |
| Voir | Disponible | 418 900€ | A14 A101 | Appt. | - | 93.72m2 | 1er | Disponible | 418 900€ | Voir |
| Voir | Disponible | 316 400€ | A14 A102 | Appt. | - | 64.76m2 | 1er | Disponible | 316 400€ | Voir |
| Voir | Disponible | 310 300€ | A14 A103 | Appt. | - | 66.14m2 | 1er | Disponible | 310 300€ | Voir |
| Voir | Disponible | 419 500€ | A14 A201 | Appt. | - | 93.72m2 | 2ème | Disponible | 419 500€ | Voir |
| Voir | Disponible | 304 100€ | A14 A202 | Appt. | - | 8.66m2 | 2ème | Disponible | 304 100€ | Voir |
| Voir | Disponible | 315 800€ | A14 A203 | Appt. | - | 66.09m2 | 0-RDC | Disponible | 315 800€ | Voir |
| Voir | Disponible | 413 100€ | A15 A001 | Appt. | - | 81.98m2 | 0-RDC | Disponible | 413 100€ | Voir |
| Voir | Disponible | 260 900€ | A15 A002 | Appt. | - | 47.18m2 | 0-RDC | Disponible | 260 900€ | Voir |
| Voir | Disponible | 397 600€ | A15 A101 | Appt. | - | 83.2m2 | 1er | Disponible | 397 600€ | Voir |
| Voir | Disponible | 246 300€ | A15 A102 | Appt. | - | 46.93m2 | 1er | Disponible | 246 300€ | Voir |
| Voir | Disponible | 305 500€ | A15 A103 | Appt. | - | 65.02m2 | 1er | Disponible | 305 500€ | Voir |
| Voir | Disponible | 395 900€ | A15 A201 | Appt. | - | 83.19m2 | 2ème | Disponible | 395 900€ | Voir |
| Voir | Disponible | 249 400€ | A15 A202 | Appt. | - | 47.11m2 | 2ème | Disponible | 249 400€ | Voir |
| Voir | Disponible | 308 500€ | A15 A203 | Appt. | - | 65.06m2 | 2ème | Disponible | 308 500€ | Voir |
| Voir | Disponible | 328 600€ | B15 B001 | Appt. | - | 64.41m2 | 0-RDC | Disponible | 328 600€ | Voir |
| Voir | Disponible | 260 900€ | B15 B002 | Appt. | - | 49.2m2 | 0-RDC | Disponible | 260 900€ | Voir |
| Voir | Disponible | 253 100€ | B15 B003 | Appt. | - | 46.47m2 | 0-RDC | Disponible | 253 100€ | Voir |
| Voir | Disponible | 328 300€ | B15 B004 | Appt. | - | 64.64m2 | 0-RDC | Disponible | 328 300€ | Voir |
| Voir | Disponible | 317 500€ | B15 B101 | Appt. | - | 65.62m2 | 1er | Disponible | 317 500€ | Voir |
| Voir | Disponible | 248 900€ | B15 B102 | Appt. | - | 49.5m2 | 1er | Disponible | 248 900€ | Voir |
| Voir | Disponible | 233 900€ | B15 B103 | Appt. | - | 45.96m2 | 1er | Disponible | 233 900€ | Voir |
| Voir | Disponible | 312 900€ | B15 B104 | Appt. | - | 65.01m2 | 1er | Disponible | 312 900€ | Voir |
| Voir | Disponible | 317 500€ | B15 B201 | Appt. | - | 65.63m2 | 1er | Disponible | 317 500€ | Voir |
| Voir | Disponible | 251 100€ | B15 B202 | Appt. | - | 49.5m2 | 2ème | Disponible | 251 100€ | Voir |
| Voir | Disponible | 237 800€ | B15 B203 | Appt. | - | 45.98m2 | 2ème | Disponible | 237 800€ | Voir |
| Voir | Disponible | 449 100€ | B15 B204 | Appt. | - | 102.72m2 Le bon plan | 2ème | Disponible | 449 100€ | Voir |