Prix
319 000€
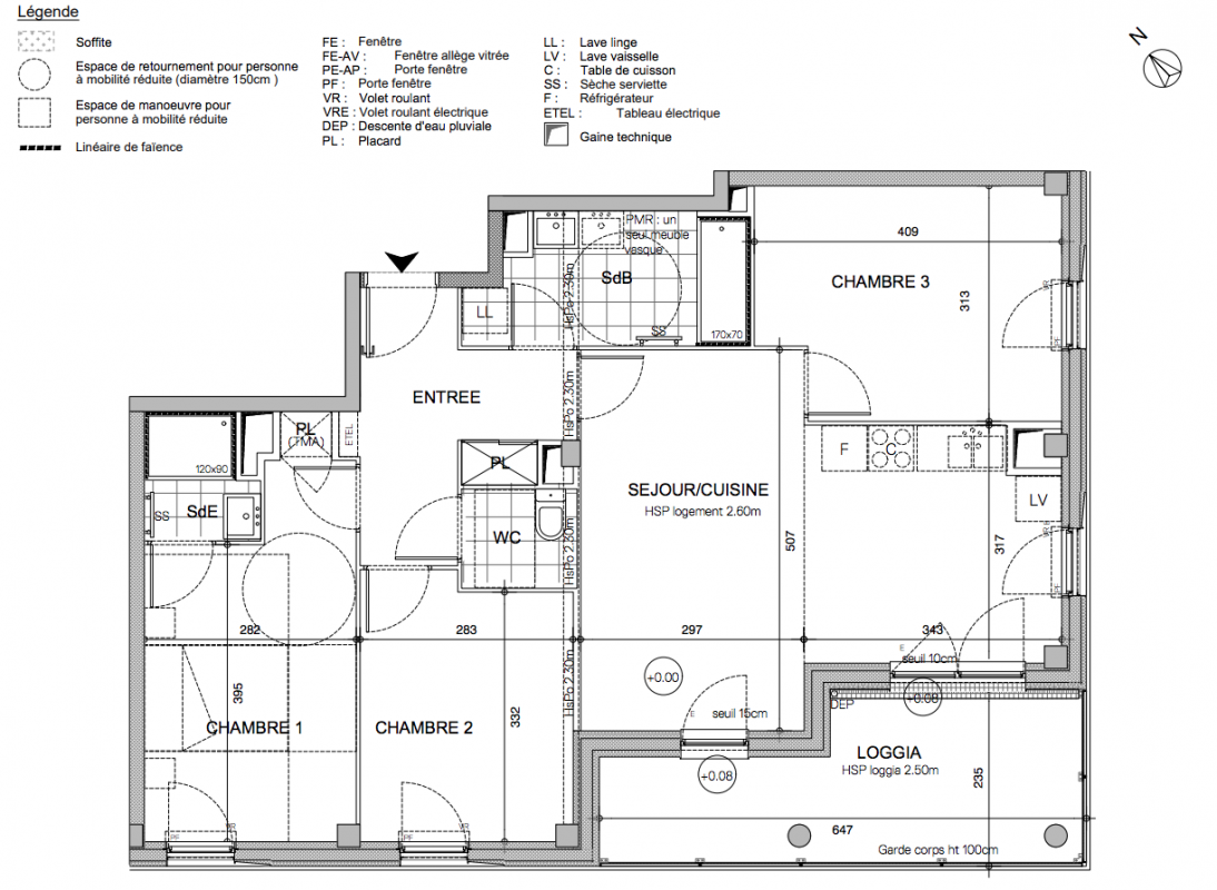
Type
Appt. au 0-RDC
Pièces
T4
Surface
77.22 m²
Exposition
-
Ville
Nantes (44000)
Livraison
4ème trimestre 2024
Informations
01 81 80 39 10

Présentation du programme "COEUR BOISE"


Choix parmi une sélection de revêtements de sols stratifié ou souple dans les pièces de vie et les chambres
Plusieurs harmonies de faïence dans les pièces d'eau
Menuiseries mixtes en PVC et aluminium thermolaqué
Volets roulants électriques dans les séjours et cuisines
Salles de bains et salles d'eau équipées de meubles vasques avec miroirs, appliques lumineuses et sèche-serviettes électriques
Placard dans chaque entrée
Production d'eau chaude et chauffage par chaufferie bois 
Résidence sécurisée : accès Vigik et vidéophone mains-libres
Véhicules disponibles en auto-partage
Un stationnement en sous-sol par logement
Local à vélos, poussettes et trottinettes dans chaque bâtiment 
Ascenseur dans chaque bâtiment desservant le parking et les étages
Jardins engazonnés, avec haie et arbres

Autres logements T4 du programme "COEUR BOISE"

Disponibilité Prix Genre Pièces Surface Étage
Voir
Disponible
309 000€ Appt. T4 77.22m2 0-RDC
Voir
Disponible
349 000€ Appt. T4 84.21m2 0-RDC
Voir
Disponible
344 000€ Appt. T4 82.14m2 0-RDC
DO NOT CLICK