Prix
274 999€
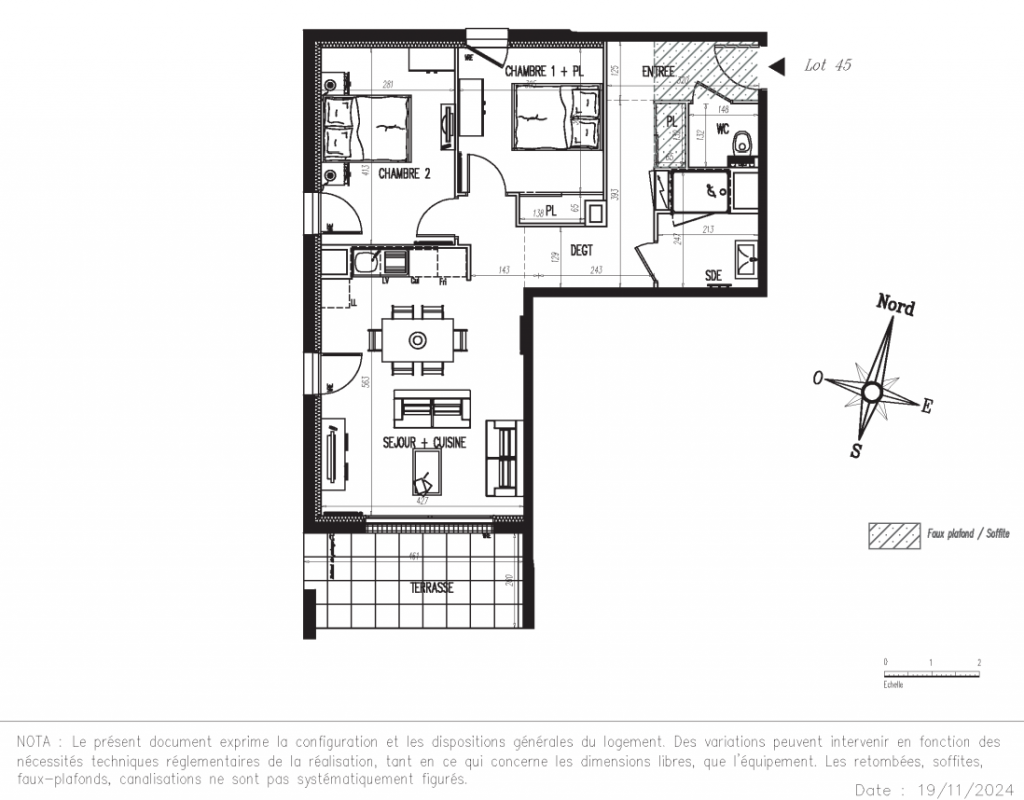
Type
Appt. au 0-RDC
Pièces
T3
Surface
64 m²
Exposition
Sud
Ville
Carquefou (44470)
Livraison
3ème trimestre 2027
Informations
01 81 80 39 10

Présentation du programme "LE 9.18 Bâtiment D"

AU CŒUR DE LA SÉRÉNITÉ
À Carquefou, un terrain de jeu onirique tend les bras, dans
une ville où résider est une véritable invitation au bien-être.
Avec ses 21 000 habitants, Carquefou dévoile son art
de vivre exceptionnel. Cette commune bénéficie d'une
localisation privilégiée, à seulement 20 minutes du
centre de Nantes et de son effervescent cœur de
ville. L'océan se trouve à moins d'une heure, et Paris
est à portée de main à deux heures de train. L'accès
immédiat à l'autoroute A11 et au périphérique, conjugué
à un réseau de transports en commun efficace, permet
de rejoindre aisément Nantes et les principaux pôles
d'emplois de la région.

Autres logements T3 du programme "LE 9.18 Bâtiment D"

Disponibilité Prix Genre Pièces Surface Étage
Voir
Disponible
285 000€ Appt. T3 63m2 1er
Voir
Disponible
298 999€ Appt. T3 69m2 1er
Voir
Disponible
289 000€ Appt. T3 69m2 0-RDC
DO NOT CLICK