Ce lot n’est plus disponible chez VIANOVA ou est vendu.

Vous pouvez revenir dans 24h pour vérifier le stock à jour ou contacter un conseiller Vianova pour vérifier le stock en direct.
Vous pouvez également continuer votre recherche sur notre site « ici ».

Prix
280 000€
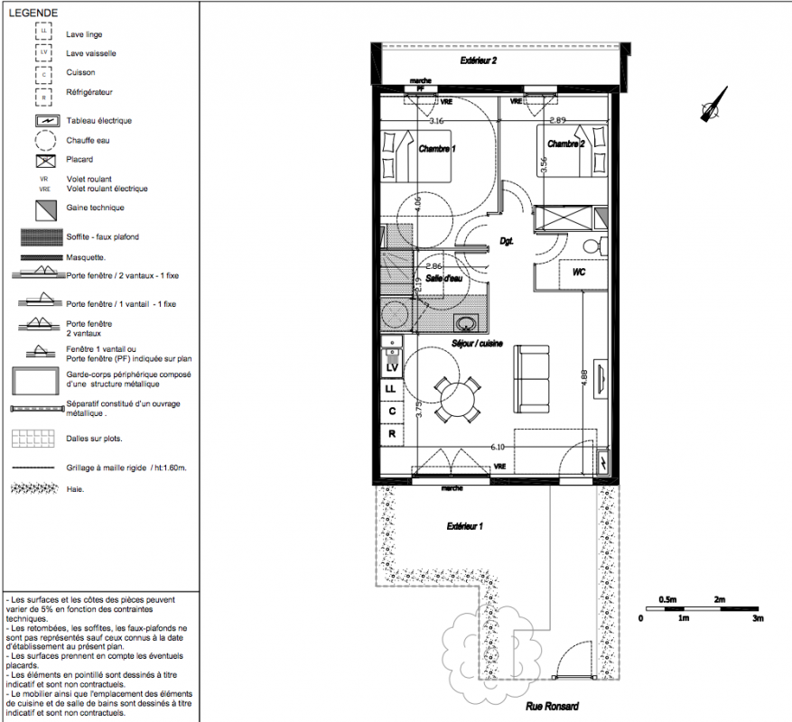
Type
Appt. au 0-RDC
Pièces
T3
Surface
60 m²
Exposition
Sud
Ville
Mireval (34110)
Livraison
4ème trimestre 2025
Informations
01 81 80 39 10

Présentation du programme "Le sonnet d'Eulalie"

Nouvelle résidence d'appartements neufs à MirevalNexity vous présente en avant-première sa nouvelle résidence d'appartements neufs à MIreval. Le village de Mireval situé entre Montpellier et Sète surplombe les Salines de Villeneuve les Maguelone et la Mer Méditerranée. Son emplacement est la promesse d'un cadre de vie idéal. La résidence Le sonnet d'Eulalie vous propose un choix d'appartements neufs du 2 au 4 pièces avec de belles terrasses ou tropéziennes. Pour être informé en avant-première, contactez-nous!

Autres logements T3 du programme "Le sonnet d'Eulalie"

Pas de logements disponibles