178 000€ (TVA 20%)
163 167€ (TVA 10%)
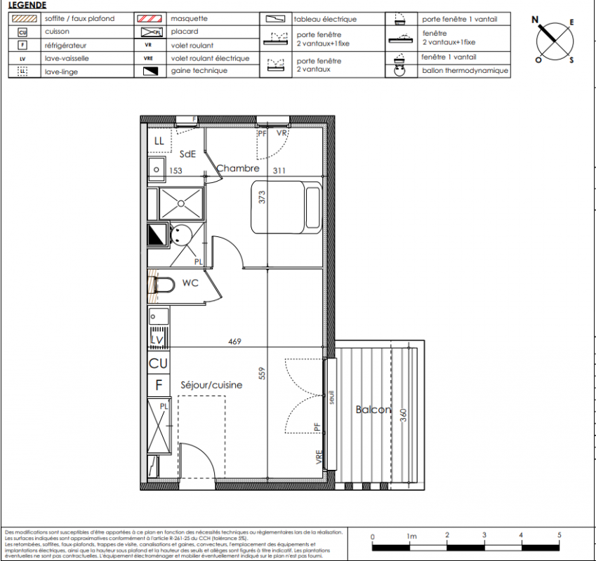
Appt. au 1er
T2
42 m²
Sud-Est
Agde (34300)
3ème trimestre 2027
01 81 80 39 10
Présentation du programme "RESIDENCE HEMERA"
Découvrez notre nouvelle résidence d'appartements neufs à Agde. À quelques kilomètres seulement de Béziers et de la métropole montpelliéraine, la Perle noire de la Méditerranée bénéficie d'un emplacement privilégié. Vous tomberez sous le charme de la diversité de cette ville de caractère, à la fois première station balnéaire d'Europe et ville typique du Sud avec son authentique village de pêcheurs et son coeur historique aux rues pavées. La résidence Hemera est située dans un quartier à mi-chemin des plages et du centre ville. L'arrêt de bus "Oliveraie" est situé au pied de la résidence, les bus desservent la gare d'Agde, le Grau d'Agde et la station du Cap d'Agde. Les commerces sont situés à 700m à pied. Les appartements neufs du 2 pièces au 4 pièces disposent d'un extérieur, balcon ou terrasse et d'un stationnement. Pour habiter ou investir à Agde contactez-nous !
Autres logements T2 du programme "RESIDENCE HEMERA"
| Disponibilité | Prix | No | Genre | Pièces | Surface | Étage | Disponibilité | Prix | ||
|---|---|---|---|---|---|---|---|---|---|---|
| Voir | Disponible | 185 999€ | 3004 | Appt. | T2 | 42m2 | 0-RDC | Disponible | 185 999€ | Voir |
| Voir | Disponible | 178 000€ | 3103 | Appt. | T2 | 42m2 | 1er | Disponible | 178 000€ | Voir |
| Voir | Disponible | 187 000€ | 4003 | Appt. | T2 | 42m2 Le bon plan | 0-RDC | Disponible | 187 000€ | Voir |
| Voir | Disponible | 181 000€ | 5103 | Appt. | T2 | 42m2 | 1er | Disponible | 181 000€ | Voir |
| Voir | Disponible | 178 000€ | 4103 | Appt. | T2 | 42m2 | 1er | Disponible | 178 000€ | Voir |