Ce lot n’est plus disponible chez VIANOVA ou est vendu.

Vous pouvez revenir dans 24h pour vérifier le stock à jour ou contacter un conseiller Vianova pour vérifier le stock en direct.
Vous pouvez également continuer votre recherche sur notre site « ici ».

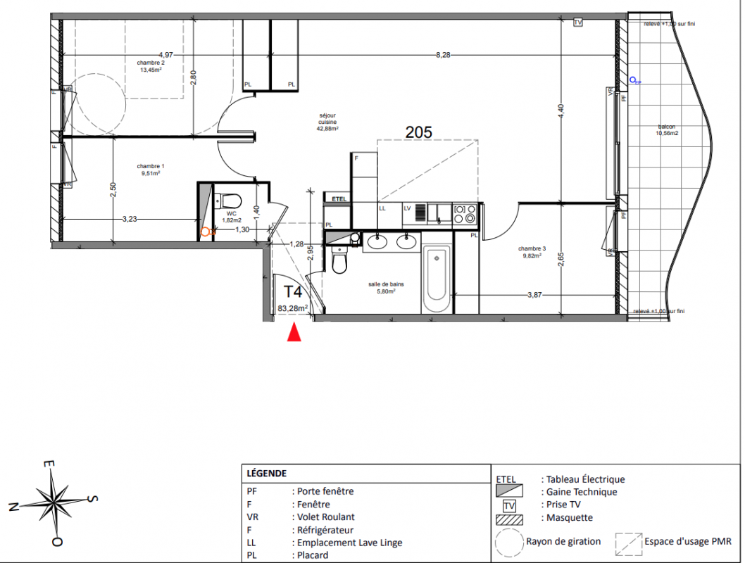
Prix
289 000€
Type
Appt. au 0-RDC
Pièces
T4
Surface
88.56 m²
Exposition
Est
Ville
Agde (34300)
Livraison
1er trimestre 2026
Informations
01 81 80 39 10

Présentation du programme "ONYX"

Un emplacement de 1er choixUne architecture élégante et moderneDes appartements à la conception unique

Autres logements T4 du programme "ONYX"

Disponibilité Prix Genre Pièces Surface Étage
Voir
Archivé
275 000€ Appt. T4 86.28m2 0-RDC
DO NOT CLICK