249 000€
Appt. au 4ème
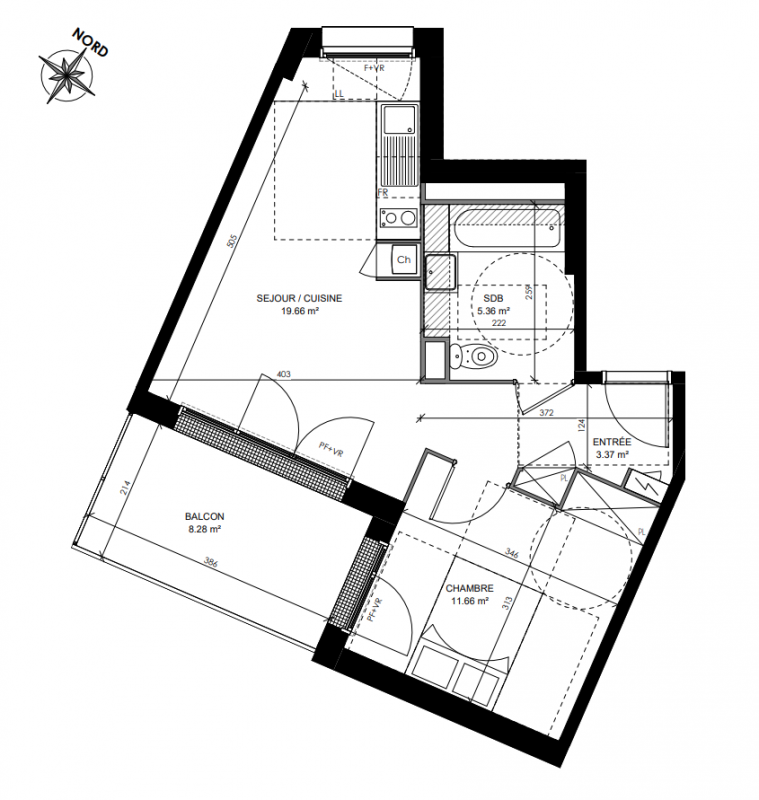
T2
39.86 m²
-
Toulouse (31000)
4ème trimestre 2027
01 81 80 39 10
Présentation du programme "Ô TOULOUSE"
Au cœur d’un quartier recherché de Toulouse, devenez propriétaire à des conditions exceptionnelles !
VOTRE APPARTEMENT 2 PIÈCES À 806,25 €/MOIS(1)
European Homes a sélectionné pour vous une adresse inédite qui concilie soigneusement l’effervescence citadine, la douceur de vivre et le charme authentique de la Ville Rose. Idéalement située à 150 mètres du métro B (station de métro Barrière de Paris), des écoles, du Parc de la Salade et des commerces, plusieurs lieux de loisirs ainsi que des zones commerciales et de nombreux bassins d’emplois (aéronautique, automobile, industriel et commercial) le tout à moins 10 minutes* en voiture.
Située au Nord de Toulouse, dans le quartier de Barrière de Paris, découvrez en avant-première notre nouvelle résidence moderne, composée de seulement 21 appartements allant du 2 au 4 pièces, avec certains logements proposés dans le cadre du dispositif de Prix Maitrisés.
Dotée d’une écriture architecturale sobre et contemporaine faisant la part belle aux espaces extérieurs privatifs, l’ensemble des façades offrent un aspect sculptural avec un traitement végétal soigné grâce à son habillage de plantes grimpantes et d’arbustes.
Depuis 50 ans, European Homes réinvente la qualité de vie et propose à Toulouse des appartements traversant tous dotés d’un espace extérieur généreux. Chaque logement bénéficie d’une place de stationnement privative et sécurisée en sous-sol.
À seulement 10 min* du Capitole, laissez-vous séduire par cette adresse unique pour vivre à Toulouse ou réaliser un investissement à forte valeur.
* Source : Google Maps. (1) Simulation bancaire réalisée sans prêt à taux zéro pour le lot n° A101 de la résidence « Ô TOULOUSE » à TOULOUSE (31200). Sous réserve de conclusion d’un contrat de réservation entre le 01/12/2025 et le 28/02/2026 et réitération de la vente dans les délais stipulés au contrat de réservation et sous réserve d’obtention des prêts aux conditions suivantes. Cette simulation est communiquée à titre informatif ; elle est établie sur la base de taux moyens du marché constatés au 01/12/2025 pour diverses situations comparables. Cette présentation indicative ne constitue en aucun cas une offre commerciale de financement et n’a aucune valeur contractuelle. Exemple de financement établi par La Centrale de Financement pour EUROPEAN HOMES, pour l’acquisition d’une résidence principale d’un montant de 194 000 € TTC hors parking (hors frais) prix en TVA 5,5% sous réserve que les conditions de l’article
Autres logements T2 du programme "Ô TOULOUSE"
| Disponibilité | Prix | No | Genre | Pièces | Surface | Étage | Disponibilité | Prix | ||
|---|---|---|---|---|---|---|---|---|---|---|
| Voir | Disponible | 220 663€ | A101 | Appt. | T2 | 39.63m2 | 1er | Disponible | 220 663€ | Voir |
| Voir | Disponible | 246 000€ | A104 | Appt. | T2 | 39.82m2 | 1er | Disponible | 246 000€ | Voir |
| Voir | Disponible | 246 000€ | A201 | Appt. | T2 | 39.63m2 | 2ème | Disponible | 246 000€ | Voir |
| Voir | Disponible | 247 000€ | A204 | Appt. | T2 | 39.82m2 | 2ème | Disponible | 247 000€ | Voir |
| Voir | Disponible | 247 000€ | A301 | Appt. | T2 | 39.63m2 | 3ème | Disponible | 247 000€ | Voir |
| Voir | Disponible | 248 000€ | A304 | Appt. | T2 | 39.82m2 | 3ème | Disponible | 248 000€ | Voir |
| Voir | Disponible | 248 000€ | A401 | Appt. | T2 | 39.63m2 | 4ème | Disponible | 248 000€ | Voir |