306 000€
Appt. au 3ème
T3
65.61 m²
Nord-Ouest
Toulouse (31000)
4ème trimestre 2028
01 81 80 39 10
Présentation du programme "Programme neuf Toulouse (31000)"
GRAND LANCEMENT COMMERCIAL à TOULOUSE les 27 & 28 mars ! Soyez parmi les premiers à choisir votre appartement neuf avec espace extérieur et parking ! Jusqu'à 4500 euros de remise & frais de notaire offerts.Du 2 au 4 pièces, les appartements offrent des surfaces optimisées, traversantes et lumineuses, avec une double orientation pour la plupart. Tous les logements bénéficient d'un espace extérieur, idéal pour profiter des vues dégagées sur le parc, les Pyrénées, la Garonne ou les toits de Toulouse. L'agencement soigné, les prestations de qualité et la générosité des volumes assurent un confort de vie durable et contemporain.La résidence s'organise autour d'un cœur d'îlot paysager pensé comme un lieu de respiration et de rencontre. Une promenade douce traverse l'ensemble, ponctuée de zones de détente. Des locaux vélos facilement accessibles, un parking et des accès sécurisés viennent compléter les services offerts par ce cadre de vie moderne et convivial.Située dans l'écoquartier dynamique de la Cartoucherie, à l'ouest de Toulouse, la résidence bénéficie d'un environnement urbain complet : commerces, écoles, équipements sportifs, cinéma, théâtre... Tout est sur place. À quelques minutes à pied, les Jardins du Barry et les bords de Garonne offrent un cadre naturel privilégié. Le Zénith, l'aéroport, l'hôpital Purpan et le centre-ville sont rapidement accessibles, grâce à l'arrêt de tramway T1 _ Zénith _ situé au pied de la résidence, et aux lignes de bus 31 et 45.Contactez dès maintenant un de nos conseillers pour découvrir en avant-première tous nos appartements neufs à et bénéficier des meilleures conditions pour votre achat !
Autres logements T3 du programme "Programme neuf Toulouse (31000)"
| Disponibilité | Prix | No | Genre | Pièces | Surface | Étage | Disponibilité | Prix | ||
|---|---|---|---|---|---|---|---|---|---|---|
| Voir | Disponible | 318 000€ | A1001 | Appt. | T3 | 60.97m2 | 10ème | Disponible | 318 000€ | Voir |
| Voir | Disponible | 340 000€ | A1002 | Appt. | T3 | 65.45m2 | 10ème | Disponible | 340 000€ | Voir |
| Voir | Disponible | 310 000€ | A1003 | Appt. | T3 | 60.12m2 | 10ème | Disponible | 310 000€ | Voir |
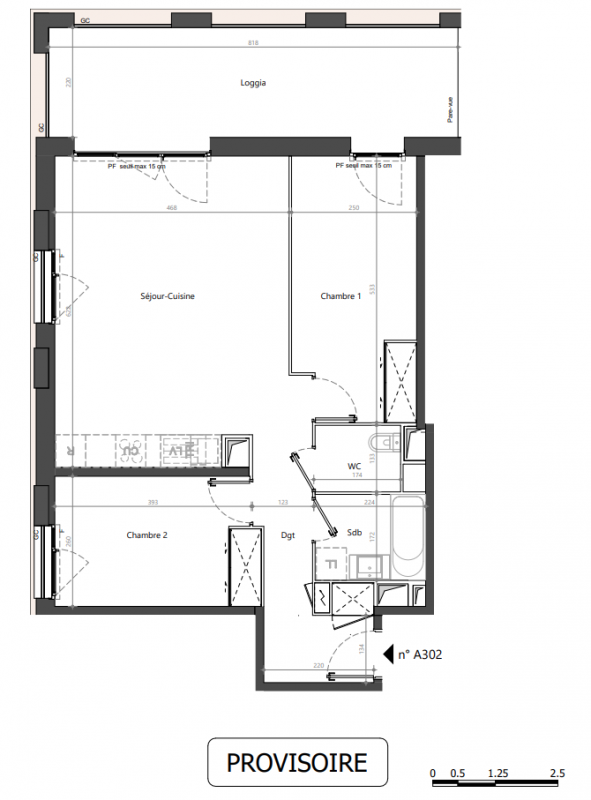
| Voir | Disponible | 300 000€ | A102 | Appt. | T3 | 65.61m2 | 1er | Disponible | 300 000€ | Voir |
| Voir | Disponible | 295 000€ | A104 | Appt. | T3 | 65.74m2 Le bon plan | 1er | Disponible | 295 000€ | Voir |
| Voir | Disponible | 320 000€ | A1102 | Appt. | T3 | 60.91m2 | 11ème | Disponible | 320 000€ | Voir |
| Voir | Disponible | 308 000€ | A1203 | Appt. | T3 | 57.65m2 | 12ème | Disponible | 308 000€ | Voir |
| Voir | Disponible | 319 000€ | A1301 | Appt. | T3 | 57.78m2 | 13ème | Disponible | 319 000€ | Voir |
| Voir | Disponible | 324 000€ | A1401 | Appt. | T3 | 57.78m2 | 14ème | Disponible | 324 000€ | Voir |
| Voir | Disponible | 330 000€ | A1501 | Appt. | T3 | 57.78m2 | 15ème | Disponible | 330 000€ | Voir |
| Voir | Disponible | 335 000€ | A1601 | Appt. | T3 | 57.78m2 | 16ème | Disponible | 335 000€ | Voir |
| Voir | Disponible | 279 000€ | A201 | Appt. | T3 | 60.97m2 | 2ème | Disponible | 279 000€ | Voir |
| Voir | Disponible | 303 000€ | A202 | Appt. | T3 | 65.61m2 | 2ème | Disponible | 303 000€ | Voir |
| Voir | Disponible | 298 000€ | A204 | Appt. | T3 | 65.74m2 | 2ème | Disponible | 298 000€ | Voir |
| Voir | Disponible | 282 000€ | A301 | Appt. | T3 | 60.97m2 | 3ème | Disponible | 282 000€ | Voir |
| Voir | Disponible | 301 000€ | A304 | Appt. | T3 | 65.74m2 | 3ème | Disponible | 301 000€ | Voir |
| Voir | Disponible | 285 000€ | A401 | Appt. | T3 | 60.97m2 | 4ème | Disponible | 285 000€ | Voir |
| Voir | Disponible | 309 000€ | A402 | Appt. | T3 | 65.61m2 | 4ème | Disponible | 309 000€ | Voir |
| Voir | Disponible | 305 000€ | A404 | Appt. | T3 | 65.74m2 | 4ème | Disponible | 305 000€ | Voir |
| Voir | Disponible | 288 000€ | A501 | Appt. | T3 | 60.97m2 | 5ème | Disponible | 288 000€ | Voir |
| Voir | Disponible | 312 000€ | A502 | Appt. | T3 | 65.61m2 | 5ème | Disponible | 312 000€ | Voir |
| Voir | Disponible | 308 000€ | A504 | Appt. | T3 | 65.88m2 | 5ème | Disponible | 308 000€ | Voir |
| Voir | Disponible | 291 000€ | A601 | Appt. | T3 | 60.97m2 | 6ème | Disponible | 291 000€ | Voir |
| Voir | Disponible | 316 000€ | A602 | Appt. | T3 | 65.61m2 | 6ème | Disponible | 316 000€ | Voir |
| Voir | Disponible | 309 000€ | A604 | Appt. | T3 | 65.75m2 | 6ème | Disponible | 309 000€ | Voir |
| Voir | Disponible | 289 000€ | A701 | Appt. | T3 | 61m2 | 7ème | Disponible | 289 000€ | Voir |
| Voir | Disponible | 319 000€ | A702 | Appt. | T3 | 65.63m2 | 7ème | Disponible | 319 000€ | Voir |
| Voir | Disponible | 281 000€ | A703 | Appt. | T3 | 58.3m2 | 7ème | Disponible | 281 000€ | Voir |
| Voir | Disponible | 292 000€ | A801 | Appt. | T3 | 61m2 | 8ème | Disponible | 292 000€ | Voir |
| Voir | Disponible | 322 000€ | A802 | Appt. | T3 | 65.63m2 | 8ème | Disponible | 322 000€ | Voir |
| Voir | Disponible | 293 000€ | A803 | Appt. | T3 | 60.12m2 | 8ème | Disponible | 293 000€ | Voir |
| Voir | Disponible | 306 000€ | A901 | Appt. | T3 | 61.12m2 | 9ème | Disponible | 306 000€ | Voir |
| Voir | Disponible | 328 000€ | A902 | Appt. | T3 | 65.63m2 | 9ème | Disponible | 328 000€ | Voir |
| Voir | Optionné | 298 000€ | A903 | Appt. | T3 | 60.12m2 | 9ème | Optionné Mais pas encore vendu 😉 | 298 000€ | Voir |