Prix
136 000€
Type
Appt. au 3ème
Pièces
-
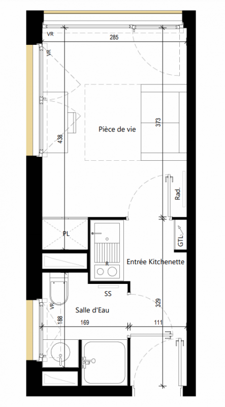
Surface
18.95 m²
Exposition
-
Ville
Toulouse (31000)
Livraison
2ème trimestre 2027
Informations
01 81 80 39 10

Présentation du programme "AERO CAMPUS"

Une métropole dynamique pour un investissement pérenne, c’est ça l’esprit SpiritLa résidence est au cœur du quartier prisé Rangueil. AERO CAMPUS réinvente la résidence étudiante. Qualité de prestations au service de nouveaux usages qui permettent ainsi de créer une expérience résidentielle unique.Le bâtiment s’affirme par une architecture sobre et géométrique.La résidence se compose de 60 appartements. Conçu en escalier, il permet de faire la liaison avec la nature environnante via des grandes terrasses végétalisées, l’une destinée à tous les résidents tandis que les autres sont reliées à quelques appartements privilégiés.Des parties communes végétalisées favorisant la biodiversité.La résidence dévoile des espaces de qualité pour que chaque résident puisse s’épanouir à travers une expérience inégalable. Ces espaces communs seront meublés et décorés pour répondre aux tendances actuelles des résidences étudiantes, afin que « chacun se sente comme chez lui ».

Autres logements - du programme "AERO CAMPUS"

Pas de logements disponibles
DO NOT CLICK