Prix
339 304€
Type
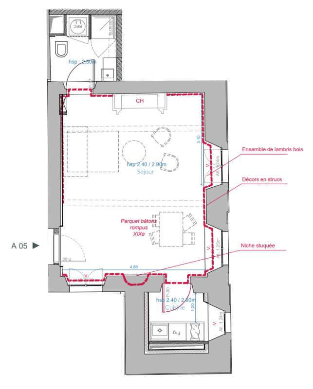
Appt. au 0-RDC
Pièces
Studio
Surface
35 m²
Exposition
Nord
Ville
Saint-Clar-de-Rivière (31600)
Livraison
4ème trimestre 2026
Informations
01 81 80 39 10

Présentation du programme "Saint-Clar-de-Rivière"

Un emplacement stratégique aux portes de ToulouseÀ moins de trente minutes de la place du Capitole, le Château Saint‑Clar‑de‑Rivière bénéficie d’une situation privilégiée au sein de l’aire d’attraction toulousaine. La région, portée par la première filière spatiale française et par un tissu économique en constante expansion, s’impose comme l’un des pôles les plus dynamiques du pays. Toulouse attire chaque année un grand nombre d’étudiants, d’ingénieurs et de chercheurs, grâce à la richesse de son offre universitaire et à la présence d’écoles d’excellence, ce qui renforce la vitalité démographique et la solidité du marché immobilier local. À proximité immédiate de Muret, cinquième ville la plus peuplée de Haute‑Garonne et parfaitement connectée, le château s’inscrit dans un environnement où les opportunités d’investir dans un Monument Historique restent exceptionnelles. Un patrimoine classé d’exceptionAu centre de Saint‑Clar‑de‑Rivière, le château déploie une silhouette élégante et parfaitement identifiable. Inscrit au titre des Monuments Historiques depuis 1999, il bénéficie d’une reconnaissance officielle pour la valeur de ses éléments architecturaux et paysagers. Cette inscription garantit que le projet de réhabilitation se fera dans le plus grand respect des caractéristiques d’origine, tout en assurant la protection durable de ce patrimoine rare. Un ensemble architectural et paysager d’exceptionÉdifié à la fin du XVIIIᵉ siècle puis embelli au XIXᵉ, le château présente une architecture classique, identifiable par son plan rectangulaire, ses quatre tours d’angle et une façade sobre alternant enduits à la chaux et bandeaux de briques. Les volets en bois massif d’origine ont été intégralement conservés, tout comme l'hostellerie et les intendances construites autour de 1900, dont le traitement architectural prolonge l’harmonie du château. À l’intérieur, la demeure conserve des éléments historiques remarquables, parmi lesquels un escalier en bois majestueux aux ferronneries travaillées, des parquets anciens, des moulures, des cheminées d’époque et une charpente préservée. L’accès au domaine est marqué par un grand portail en fer forgé, soulignant la noblesse du site. L’ensemble s’inscrit au cœur d’un parc planté d’arbres centenaires, où un travail paysager attentif permet de révéler la richesse botanique du lieu, de préserver les essences remarquables et de restituer certains tracés historiques. Ce jardin, soigneusement valorisé, formera un véritable écri

Autres logements Studio du programme "Saint-Clar-de-Rivière"

Pas de logements disponibles
DO NOT CLICK