Ce lot n’est plus disponible chez VIANOVA ou est vendu.
 Vous pouvez revenir dans 24h pour vérifier le stock à jour ou contacter un conseiller Vianova pour vérifier le stock en direct.
 Vous pouvez également continuer votre recherche sur notre site « ici ». 
265 455€
Appt. au 2ème
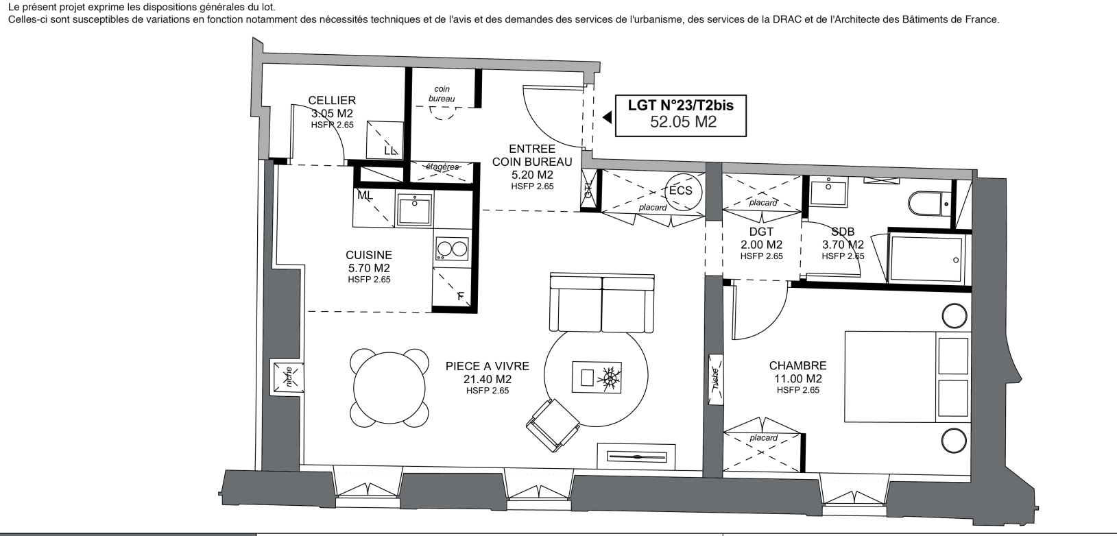
T2
52.05 m²
-
Carcassonne (11000)
1er trimestre 2024
01 81 80 39 10
Présentation du programme "Hôtel De Sauzède"
Investissez à Carcassonne, patrimoine d’exception au cœur de l’Occitanie4ème région touristique de France avec plus de 2,45 millions de visiteurs par an, moteur d'une économie touristique florissante.Agglomération de 115 000 habitants, dont 46 000 à Carcassonne même.Ville historique au riche patrimoine, avec sa Cité Médiévale classée à l’UNESCO, ses remparts, son château et son architecture unique. Carcassonne, un cadre de vie prisé et porteurBassin d’emploi actif : 22 zones d’activités, 45 000 emplois, notamment dans le tourisme, l’agriculture et les énergies renouvelables.Une ville en croissance, avec plus de 3 000 nouveaux habitants chaque année.Un pôle éducatif en développement avec 1 800 étudiants et 15 établissements d’enseignement supérieur. Commodités et transports Située au cœur de la Bastide Saint-Louis, centre-ville historique de Carcassonne.Commerces, épiceries, écoles, collèges, IUT et centre hospitalier à moins de 10 min.Canal du Midi à 1 min, Place Carnot à 5 min, gare SNCF à 10 min à pied.Aéroport international à 8 min en voiture.Desserte rapide vers Toulouse (45 min), Narbonne (30 min) et Montpellier (1h30) grâce à la gare TGV et aux axes routiers (A61, N113). Focus Prestations/Résidence Un écrin de prestige au cœur de la ville : Ensemble immobilier du XIXe siècle réhabilité avec soin dans les règles du patrimoine.Matériaux haut de gamme : parquet chêne, cuisines équipées, salles de bains premium, menuiseries bois.Parc arboré clos de murs, aménagé par un paysagiste.Parties communes rénovées et décorées par un architecte d’intérieur. Le + du programme : Une adresse prestigieuse dans un bâtiment historique, au cœur du centre-ville.
 
  
  
 