551 000€
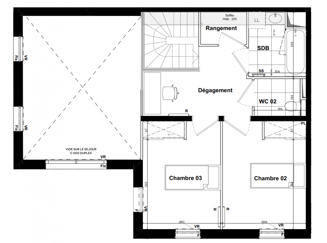
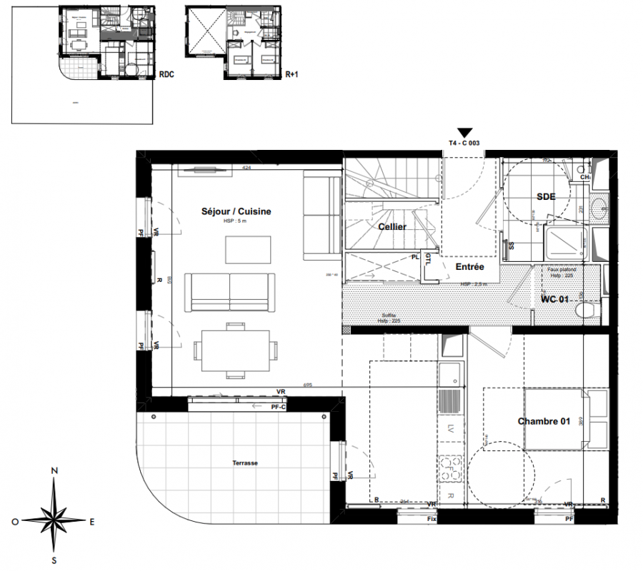
Appt. au 0-RDC
-
101.1 m²
Sud
Pessac (33600)
4ème trimestre 2024
01 81 80 39 10
Présentation du programme "Les Jardins de Célan"
Dans le quartier Sardines à Pessac – Découvrez Les Jardins de Célan – Dans un environnement calme et résidentiel, Vianova vous propose une résidence de standing lovée dans un espace verdoyant. En lisière de la coulée verte, la résidence est idéalement située à proximité immédiate de l’école Edouard Herriot (Crèche, maternelle, primaire), du collège Gérard Philipe et de l’Université Bordeaux Montaigne. Aussi vous pourrez rejoindre le tram B en moins de 5 minutes à pied avec les arrêts « Bougnard » et « Camponac Médiathèque ». Enfin, vous pourrez accéder au centre de Pessac et ses commerces en 10 minutes à pied, et d’apprécier cette ville tant désirée dans le bassin bordelais ! Eligible loi PINEL - Zone B1Conçut pour offrir le meilleur confort, les appartements, allant du T2 au T5 duplex proposent tous un espace extérieur : Loggias, terrasses et des jardins privatifs. Vous pourrez ainsi apprécier pleinement la quiétude du cœur d’ilot arboré. Aussi, les appartements sont tous dotées de surfaces généreuses et de prestations de qualités; les intérieurs lumineux ont été dessinés afin de favoriser l’harmonie avec la végétation environnante. Vous profiterez ici d’une vie sereine entre ville et parc, dans la ville recherchée de Pessac.

