351 200€
Appt. au 0-RDC
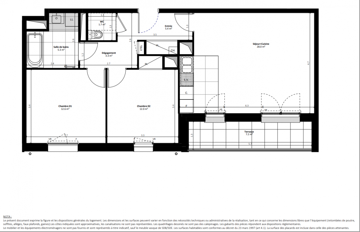
T3
68.1 m²
Sud
Cabourg (14390)
4ème trimestre 2028
01 81 80 39 10
Présentation du programme "LE DOMAINE D'EUGENIE- PP"
Vous souhaitez y habiter ? Vérifiez votre éligibilité au PTZ avec nos équipes ! Vous souhaitez le mettre en location? Vous avez le choix entre de la location nue éligible au statut du bailleur privé*ou meublée avec un pack gestionnaire. Contactez nos équipes pour une simulation.
Habitez ou investissez à Cabourg : le charme authentique de la côtefleurie
Station balnéaire réputée du Calvados, en Normandie, offrant un cadre de vie exceptionnel entre mer et nature.
Ville au charme unique avec son centre néo-normand, ses maisons à colombages et la célèbre promenade Marcel Proust face à la mer.
Qualité de vie remarquable : Cabourg séduit par son cadre exceptionnel entre mer et nature. Sa plage de sable fin, son centre de thalassothérapie et ses nombreuses infrastructures sportives et culturelles.
Cabourg : une ville attractive et porteuse
Attractivité économique : Située à proximité de Caen, la ville bénéficie d’un tissu économique dynamique porté par des filières variées (tourisme, nautisme, numérique) et par le pôle d’innovation MoHo.
Dynamisme culturel : festivals, hippodrome, salle de spectacle, Casino, Grand Hôtel.
Potentiel locatif renforcé par le label « Famille Plus », écoles, infrastructures sportives et de loisirs.
Commodités et transports
À quelques pas des essentiels : 950 m du centre-ville,des halles du marché etde la plage, 700 m des commerces, et 3 min à pied des écoles et du stade Fernand Sastre.
Accessibilité optimale : excellente desserte avec la gare de Dives-Cabourg à 4 minutes en voiture, offrant une liaison directe vers Paris Saint-Lazare. Les aéroports de Deauville et Caen se trouvent à 30 km et l’accès routier est facilité par l’autoroute A13 (sortie Dozulé). À 30 minutes de Caen et Deauville, à seulement 2h10 de Paris en voiture.
Focus prestations/résidence
Architecture soignée alternant style normand revisité et lignes contemporaines pour un ensemble harmonieux.
Logements variés et confortables : appartements allant du T1 au T4 et offrant des prestations de qualité (isolation phonique ISONO, volets roulants, double vitrage, parquet stratifié, cuisines é...
Autres logements T3 du programme "LE DOMAINE D'EUGENIE- PP"
| Disponibilité | Prix | No | Genre | Pièces | Surface | Étage | Disponibilité | Prix | ||
|---|---|---|---|---|---|---|---|---|---|---|
| Voir | Disponible | 285 900€ | F3.12 | Appt. | T3 | 59m2 | 0-RDC | Disponible | 285 900€ | Voir |
| Voir | Disponible | 309 400€ | F3.07 | Appt. | T3 | 61.4m2 | 0-RDC | Disponible | 309 400€ | Voir |
| Voir | Disponible | 332 900€ | F2.5 | Appt. | T3 | 63.6m2 | 0-RDC | Disponible | 332 900€ | Voir |
| Voir | Disponible | 355 700€ | F2.3 | Appt. | T3 | 68.3m2 | 0-RDC | Disponible | 355 700€ | Voir |
| Voir | Disponible | 308 000€ | F2.1 | Appt. | T3 | 61.1m2 | 0-RDC | Disponible | 308 000€ | Voir |
| Voir | Disponible | 328 600€ | F1.5 | Appt. | T3 | 63.4m2 | 0-RDC | Disponible | 328 600€ | Voir |
| Voir | Disponible | 305 800€ | F1.1 | Appt. | T3 | 61.3m2 | 0-RDC | Disponible | 305 800€ | Voir |
| Voir | Disponible | 296 300€ | F3.02 | Appt. | T3 | 61.3m2 Le bon plan | 0-RDC | Disponible | 296 300€ | Voir |