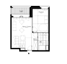
304 000€
Appt. au 0-RDC
T2
39.53 m²
Nord
Versailles (78000)
1er trimestre 2029
01 81 80 39 10
Présentation du programme "PATIO SATORY-L3"
LANCEMENT les 13,14 et 15 mars - À VERSAILLES, À 8 MIN.* À PIED DU FUTUR MÉTRO 18 **. Frais de notaire offerts (1) pour les 10 premiers réservataires. Au cœur Versailles-Satory, GCC PROMOTION lance le premier projet résidentiel d'un nouveau quartier verdoyant et connecté, pensé pour relier rapidement Versailles-Chantiers, Paris-Saclay et l'aéroport d'Orly. Une résidence résolument haut de gamme : façades en pierre massive, patio paysager, prestations soignées... Un choix d'appartements du studio au 5 pièces avec de généreuses terrasses ou loggias, et pour la plupart de grands séjours traversants ou doublement orientés, garantissant luminosité et confort de vie inégalé.Inscrivez-vous dès maintenant et participez au lancement privilège.Une réalisation GCC PROMOTION — Une commercialisation BARNES Programmes Neufs Renseignements et vente : Agence BARNES - 41 rue de la Paroisse à Versailles - accueil les vendredi 13, samedi 14 et vendredi 15 mars de 10h à 18h. (1) Offre « Frais de notaire offerts » valable du 13/03/26 au 15/03/26 inclus pour les 10 premiers réservataires : offre portant exclusivement sur les frais de notaire (émoluments du notaire et débours), à l'exclusion de tous impôts et taxes, dont les droits d'enregistrement, restant à la charge de l'acquéreur. Sont également exclus : frais de financement et de garanties, ainsi que les frais liés à l'établissement du règlement de copropriété et, le cas échéant, des statuts d'ASL et/ou du cahier des charges, dus par l'acquéreurlors de la signature de l'acte authentique. *source : Google maps**source : https://www.grandparisexpress.fr
Autres logements T2 du programme "PATIO SATORY-L3"
| Disponibilité | Prix | No | Genre | Pièces | Surface | Étage | Disponibilité | Prix | ||
|---|---|---|---|---|---|---|---|---|---|---|
| Voir | Disponible | 304 000€ | A103 | Appt. | T2 | 39.53m2 | 0-RDC | Disponible | 304 000€ | Voir |
| Voir | Disponible | 309 000€ | A203 | Appt. | T2 | 39.53m2 | 0-RDC | Disponible | 309 000€ | Voir |
| Voir | Disponible | 309 000€ | A204 | Appt. | T2 | 39.53m2 | 0-RDC | Disponible | 309 000€ | Voir |
| Voir | Disponible | 314 000€ | A303 | Appt. | T2 | 39.53m2 | 0-RDC | Disponible | 314 000€ | Voir |
| Voir | Disponible | 314 000€ | A304 | Appt. | T2 | 39.53m2 | 0-RDC | Disponible | 314 000€ | Voir |
| Voir | Disponible | 289 000€ | B003 | Appt. | T2 | 39.53m2 | 0-RDC | Disponible | 289 000€ | Voir |