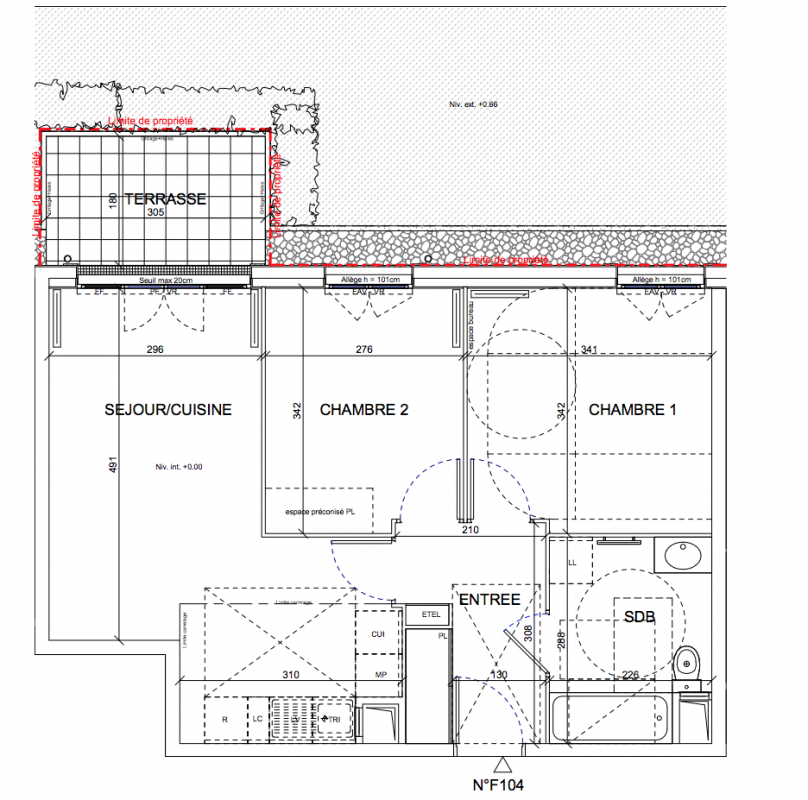
Prix
317 000€
317 000€
Type
Appt. au 1er
Appt. au 1er
Pièces
T3
T3
Surface
53.9 m²
53.9 m²
Exposition
Nord-Est
Nord-Est
Ville
Sartrouville (78500)
Sartrouville (78500)
Livraison
1er trimestre 2028
1er trimestre 2028
Informations
01 81 80 39 10
01 81 80 39 10
Présentation du programme "CENTRAL JAU.BERT"
Au cœur du centre-ville de Sartrouville, profitez d’une belle adresse pour devenir propriétaire d’un appartement tout confort, du studio au 5 pièces, avec balcon, ou généreuse terrasse en attique. À 550 m* de la gare permettant de rallier La Défense en 10 min**, la résidence s’implante sur une rue commerçante pleine de charme, à proximité des écoles, des équipements culturels et sportifs. Dotées d’une architecture élégante et raffinée, les façades offrent une alternance de matériaux et de couleurs qui apportent du rythme à cet ensemble résidentiel.