Prix
237 000€  (TVA 20%)
217 250€  (TVA 10%)
Type
Appt. au 2ème
Pièces
T2
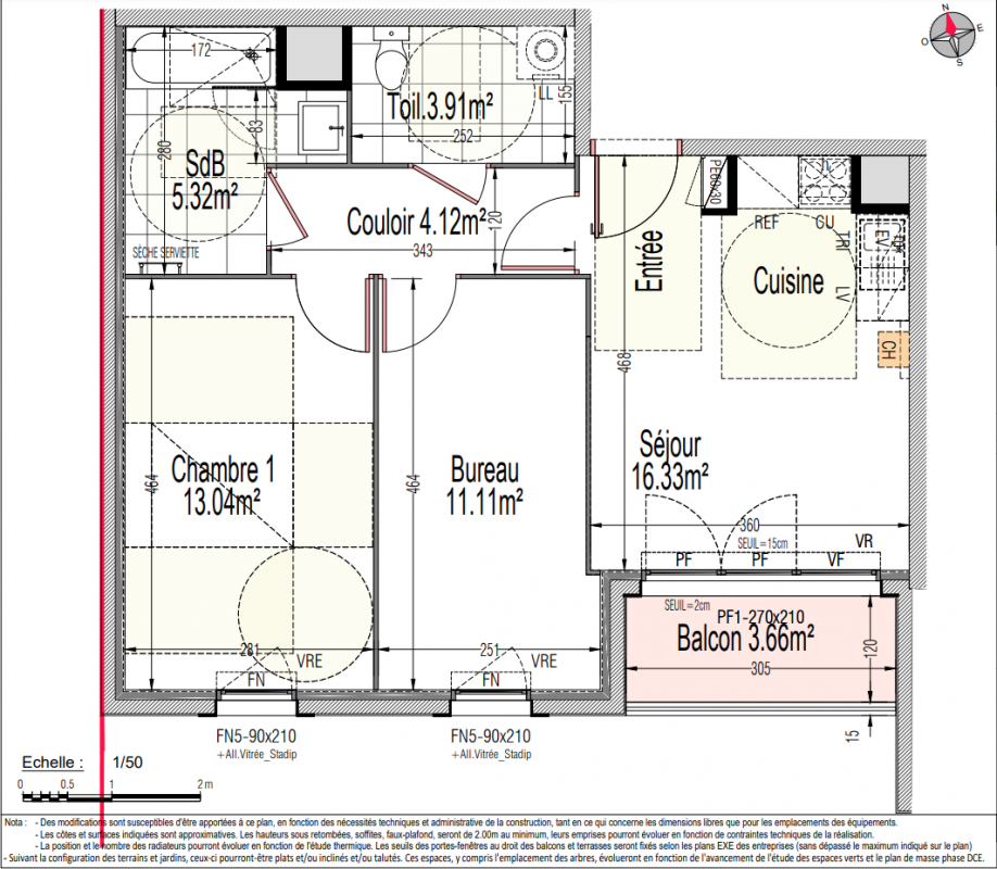
Surface
53 m²
Exposition
Sud
Ville
Saint-Arnoult-en-Yvelines (78730)
Livraison
2ème trimestre 2027
Informations
01 81 80 39 10

Présentation du programme "LA PLAGE AUX CHAMPS"

A Saint-Arnoult-en-Yvelines, votre appart neuf à partir de 547,53 euros par mois (1) pendant les 3 premières années (le montant affiché tient compte de l'offre commerciale) + FRAIS DE NOTAIRE OFFERTS (2) jusqu'au 31 mars 2026.En co-promotion avec le Groupe Emergence, découvrez votre future résidence idéalement située, au coeur du massif forestier de Rambouillet, dans un environnement calme et pavillonnaire. A l'architecture traditionnelle avec un coeur d'ilot partagé et verdoyant notre résidence propose des appartements du 2 au 3 pièces prolongés par des espaces extérieurs.(1)(2) Voir conditions sur notre site internet.

Autres logements T2 du programme "LA PLAGE AUX CHAMPS"

Disponibilité Prix Genre Pièces Surface Étage
Voir
Disponible
174 000€ Appt. T2 37m2 1er
Voir
Disponible
214 000€ Appt. T2 48m2 1er
DO NOT CLICK