Prix
195 000€
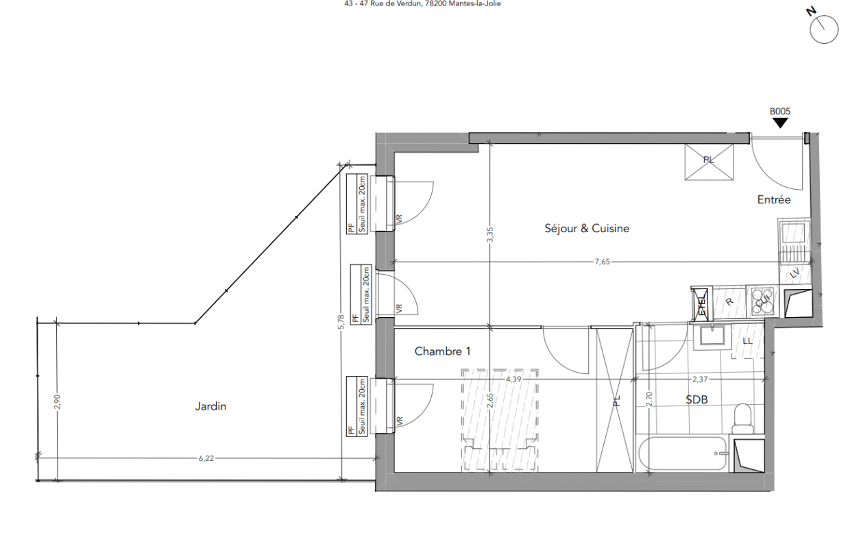
Type
Appt. au 0-RDC
Pièces
T2
Surface
42.06 m²
Exposition
-
Ville
Mantes-la-Jolie (78200)
Livraison
4ème trimestre 2028
Informations
01 81 80 39 10

Présentation du programme "CONFIDENCE"

DEVENEZ PROPRIÉTAIRE DU 2 AU 4 PIÈCES, EN CENTRE-VILLE DE MANTES-LA-JOLIE : VOTRE APPARTEMENT NEUF 3 PIÈCES AVEC TERRASSE À 886,80 €/MOIS**, SOIT 215 000 €**, DANS UN CADRE DE VIE INTIMISTE À 5 MIN* DE LA GARE DE MANTES STATION.

Grâce au Prêt à Taux Zéro** en zone A, augmentez votre capacité d’achat en bénéficiant d’un emprunt à taux 0 % pouvant atteindre jusqu’à 180 000 €, soit 50 % de l’acquisition de votre futur appartement**, tout en profitant des frais de notaire réduits dans le neuf et des meilleures performances énergétiques pour un confort durable.

JUSQU'À 16 000 € DE REMISE POUR LES 5 PREMIERS RÉSERVATAIRES** !
(Les prix affichés comprennent l'offre de remise)

VOTRE APPARTEMENT NEUF 2 PIÈCES AVEC TERRASSE À 734,20 €/MOIS**, SOIT 178 000 €**
VOTRE APPARTEMENT NEUF 4 PIÈCES AVEC TERRASSE À 1 113,66 €/MOIS**, SOIT 270 000 €**

Fort de son savoir-faire de plus de 50 ans en immobilier résidentiel, European Homes imagine pour vous un cadre de vie moderne et serein au cœur de Mantes-la-Jolie.


UNE ADRESSE STRATÉGIQUE AUX PORTES DU GRAND PARIS
À seulement 35 min* de Paris Saint-Lazare (Ligne J), European Homes signe une nouvelle réalisation au 43-47 rue de Verdun. Profitez d'une connexion exceptionnelle avec deux gares à proximité immédiate, accueillant le futur RER E et la ligne 15 à l'horizon 2027***.
Vivez un quotidien facilité : écoles (Ferdinand Buisson, Chénier), complexes sportifs (Dantan, David) et commerces sont accessibles dans un rayon de 500 m*. L’A13 (gratuite vers Paris) et l’A14 placent La Défense à moins de 45 min*.

UNE RÉSIDENCE INTIMISTE, ENTRE CALME ET ÉLÉGANCE
D’architecture contemporaine inspirée du style meulière, cette nouvelle réalisation se compose de 60 appartements répartis sur deux bâtiments de seulement 3 étages. Véritable cocon d'intimité avec stationnement en sous-sol, le projet propose des logements du 2 au 4 pièces, tous prolongés par un espace extérieur privatif :

- Appartements 2 pièces de 38 m² à 46 m² avec balcon ou jardin jusqu’à 70 m². Des intérieurs cosy et optimisés, parfaits pour un premier achat ou un pied-à-terre.
- Appartements 3 pièces de 51 m² à 59 m² avec balcon, terrasse ou jardin jusqu’à 119 m². L'équilibre idéal entre confort et praticité pour une vie toujours plus épanouie.
- Appartements 4 pièces de 71 m² à 84 m² avec balcon ou jardin jusqu’à 155 m². De beaux volumes généreux pour recevoir et s'épanouir sans compromis.

MANTES-LA-JOLIE : L’ÉQUILIBRE ENTRE VILLE ROYALE ET NATURE
Surnommée la « Vil

Autres logements T2 du programme "CONFIDENCE"

Disponibilité Prix Genre Pièces Surface Étage
Voir
Disponible
206 000€ Appt. T2 41.05m2 0-RDC
Voir
Disponible
186 000€ Appt. T2 39.03m2 0-RDC
Voir
Disponible
182 000€ Appt. T2 38.76m2 0-RDC
Voir
Disponible
190 000€ Appt. T2 42.32m2 1er
Voir
Disponible
194 000€ Appt. T2 42.44m2 1er
Voir
Disponible
196 000€ Appt. T2 42.71m2 1er
Voir
Disponible
199 000€ Appt. T2 43.36m2 1er
Voir
Disponible
191 000€ Appt. T2 42.11m2 1er
Voir
Disponible
194 000€ Appt. T2 42.3m2 2ème
Voir
Disponible
198 000€ Appt. T2 42.43m2 2ème
Voir
Disponible
198 000€ Appt. T2 42.68m2 2ème
Voir
Disponible
201 000€ Appt. T2 43.36m2 2ème
Voir
Disponible
195 000€ Appt. T2 42.08m2 2ème
Voir
Disponible
162 000€ Appt. T2 38.5m2 3ème
Voir
Disponible
199 000€ Appt. T2 42.31m2 3ème
Voir
Disponible
226 000€ Appt. T2 46.2m2 3ème
Voir
Disponible
197 000€ Appt. T2 44.97m2 3ème
Voir
Optionné
171 000€ Appt. T2 38.3m2 3ème
DO NOT CLICK