249 668€ (TVA 20%)
219 500€ (TVA 5.5%)
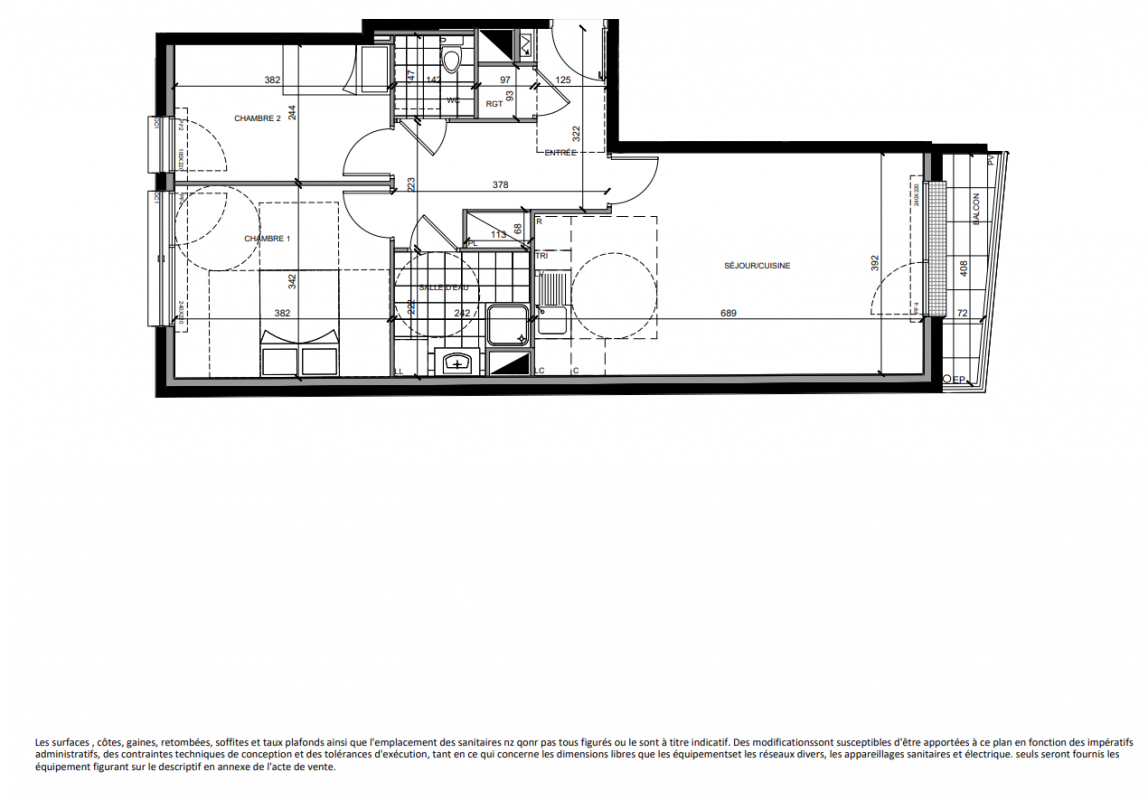
Appt. au 0-RDC
T3
65.48 m²
-
Villiers-sur-Marne (94350)
2ème trimestre 2028
01 81 80 39 10
Présentation du programme "Domaine Des Prunais BRS"
En lancement - Profitez de nos offres spéciales pour devenir propriétaire : jusqu'à 20 000€ de remise et frais de notaire offerts !Nichée dans un environnement paisible et verdoyant, notre nouvelle résidence s’apprête à voir le jour et à offrir un cadre de vie harmonieux, à la fois moderne et intimement connecté à la nature. Avec son architecture élégante, ses lignes contemporaines et ses matériaux soigneusement sélectionnés, elle s’inscrit parfaitement dans son environnement tout en affirmant une identité forte et intemporelle.La conception des appartements neufs du studio au 5 pièces a été pensée pour répondre aux plus hautes exigences de confort : généreuses surfaces, luminosité naturelle omniprésente, agencements optimisés et prestations de qualité. Chaque logement bénéficie d’un espace extérieur – balcon, terrasse panoramique ou jardin privatif.Des commerces viendront animer les rez-de-chaussée, créant un lien naturel entre les habitants et les acteurs du quartier. Une nouvelle centralité. Mais ce projet va encore plus loin. Il propose un véritable retour à l’essentiel avec des espaces communs inédits : un potager collaboratif, un jardin d’enfants, ouverts à tous les résidents. Des lieux pensés pour cultiver à la fois la terre… et les liens humains.Parfaitement connectée, la résidence bénéficie d’un emplacement stratégique à seulement 10 minutes* de la gare du Grand Paris Noisy–Champs, accessible directement en bus ou en voiture. Véritable hub de mobilité, cette gare figure parmi les plus importantes d’Île-de-France, reliant rapidement Paris et les grands pôles économiques de la métropole. Une accessibilité précieuse qui renforce l’attractivité du projet, aussi bien pour les résidents actifs que pour les investisseurs en quête de valorisation durable.Résidence éligible à la TVA réduite à 5,5%
Autres logements T3 du programme "Domaine Des Prunais BRS"
| Disponibilité | Prix | No | Genre | Pièces | Surface | Étage | Disponibilité | Prix | ||
|---|---|---|---|---|---|---|---|---|---|---|
| Voir | Disponible | 230 104€ | D1003 | Appt. | T3 | 58.68m2 Le bon plan | 0-RDC | Disponible | 230 104€ | Voir |
| Voir | Disponible | 233 517€ | D1103 | Appt. | T3 | 58.68m2 | 0-RDC | Disponible | 233 517€ | Voir |
| Voir | Disponible | 268 436€ | D1104 | Appt. | T3 | 67.59m2 | 0-RDC | Disponible | 268 436€ | Voir |
| Voir | Disponible | 246 256€ | D2106 | Appt. | T3 | 65.48m2 | 0-RDC | Disponible | 246 256€ | Voir |
| Voir | Disponible | 251 943€ | D2107 | Appt. | T3 | 66.3m2 | 0-RDC | Disponible | 251 943€ | Voir |
| Voir | Disponible | 257 630€ | D2108 | Appt. | T3 | 64.24m2 | 0-RDC | Disponible | 257 630€ | Voir |
| Voir | Disponible | 275 829€ | D1203 | Appt. | T3 | 67.59m2 | 0-RDC | Disponible | 275 829€ | Voir |
| Voir | Disponible | 255 355€ | D2206 | Appt. | T3 | 63.3m2 | 0-RDC | Disponible | 255 355€ | Voir |
| Voir | Disponible | 259 905€ | D2207 | Appt. | T3 | 64.24m2 | 0-RDC | Disponible | 259 905€ | Voir |
| Voir | Disponible | 251 943€ | D1302 | Appt. | T3 | 61.05m2 | 0-RDC | Disponible | 251 943€ | Voir |
| Voir | Disponible | 260 474€ | D2303 | Appt. | T3 | 70.1m2 | 0-RDC | Disponible | 260 474€ | Voir |
| Voir | Disponible | 258 768€ | D2305 | Appt. | T3 | 66.3m2 | 0-RDC | Disponible | 258 768€ | Voir |
| Voir | Disponible | 262 180€ | D2306 | Appt. | T3 | 64.24m2 | 0-RDC | Disponible | 262 180€ | Voir |
| Voir | Disponible | 235 450€ | D1401 | Appt. | T3 | 59.23m2 | 0-RDC | Disponible | 235 450€ | Voir |
| Voir | Disponible | 263 886€ | D1402 | Appt. | T3 | 61.68m2 | 0-RDC | Disponible | 263 886€ | Voir |
| Voir | Disponible | 245 118€ | D2402 | Appt. | T3 | 59.38m2 | 0-RDC | Disponible | 245 118€ | Voir |
| Voir | Disponible | 263 886€ | D2404 | Appt. | T3 | 65.48m2 | 0-RDC | Disponible | 263 886€ | Voir |
| Voir | Disponible | 268 436€ | D2405 | Appt. | T3 | 66.3m2 | 0-RDC | Disponible | 268 436€ | Voir |
| Voir | Disponible | 267 867€ | D2406 | Appt. | T3 | 64.24m2 | 0-RDC | Disponible | 267 867€ | Voir |
| Voir | Disponible | 265 666€ | D1004 | Appt. | T3 | 67.59m2 | 0-RDC | Disponible | 265 666€ | Voir |