245 000€
Appt. au 1er
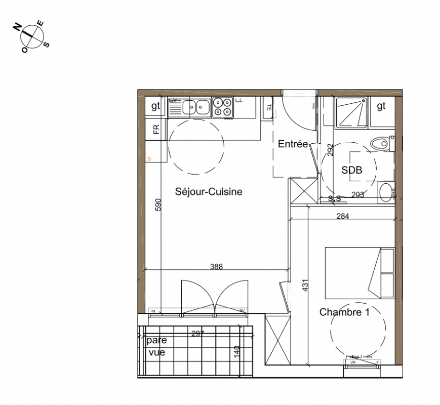
T2
43.04 m²
-
Ormesson-sur-Marne (94490)
2ème trimestre 2028
01 81 80 39 10
Présentation du programme "Programme neuf Ormesson-sur-Marne (94490)"
NOUVEAU à Ormesson-sur-Marne ! Soyez parmi les premiers à choisir votre appartement neuf dans un environnement calme et verdoyant ! Et en plus, profitez de notre offre exclusive du moment : jusqu'à 8000 euros de remise & frais de notaire offerts !Située à Ormesson-sur-Marne, cette nouvelle résidence à l'esthétique contemporaine propose des appartements du 2 au 4 pièces, conçus pour offrir confort et luminosité. Chaque logement s'ouvre sur un agréable espace extérieur : loggia, balcon, terrasse ou jardin privatif, avec pour certains des vues dégagées jusqu'à Paris. Des espaces verts paysagers partagés permettront également aux résidents de profiter d'un cadre de vie naturel et apaisant.Implantée au cœur d'un quartier résidentiel, la résidence bénéficie d'un environnement pratique au quotidien : établissements scolaires, commerces de proximité et équipements sportifs se trouvent à quelques minutes. La gare La Varenne _ Chennevières RER station, desservie par le RER A, permet de rejoindre Paris en seulement 20 minutes*. Les grands axes routiers facilitent également l'accès aux communes voisines ainsi qu'à l'aéroport d'Orly en 40 minutes*.Contactez dès à présent l'un de nos conseillers pour être parmi les premiers à choisir votre appartement neuf à Ormesson-sur-Marne ! Une co-promotion Marignan et Provini