252 000€
Appt. au 1er
T2
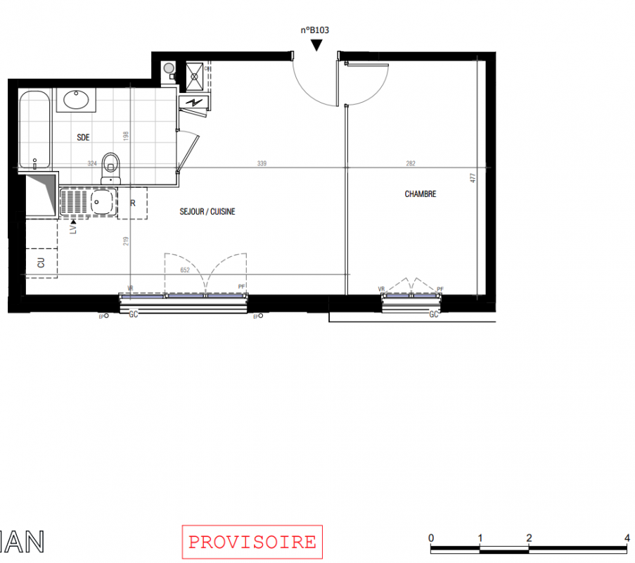
41.93 m²
Sud
Choisy-le-Roi (94600)
2ème trimestre 2028
01 81 80 39 10
Présentation du programme "Programme neuf Choisy-le-Roi (94600)"
NOUVEAU à Choisy-le-Roi ! Soyez parmi les premiers à choisir votre appartement neuf avec espace extérieur et parking.Notre nouvelle adresse, en plein centre-ville, bénéficie d’une localisation privilégiée, offrant un accès direct à tous les essentiels du quotidien : supermarchés, restaurants, services, ainsi qu’un ensemble scolaire complet de la maternelle au lycée, à seulement quelques minutes à pied. Les bords de Seine ainsi que le parc de la Mairie situés tout proches de la résidence, offrent un environnement naturel propice aux promenades et aux activités en plein air. Côté transports, la gare RER C Choisy-le-Roi, accessible en seulement 7 min* à pied, relie Paris en quelques minutes. À cela s’ajoutent le tramway T9 au pied de la résidence et un large réseau de bus facilitant l’accès aux communes environnantes. Pour les amateurs de mobilité douce, la ville encourage les déplacements à vélo grâce à des pistes cyclables bien aménagées le long des berges et dans le centre-ville favorisant un mode de vie écologique et pratique. Notre résidence propose des appartements du 2 au 4 pièces, pensés pour offrir confort et modernité au quotidien. Chaque logement dispose d’un espace extérieur privatif – balcon, terrasse ou jardin privatif prolongeant ainsi l’espace de vie pour profiter pleinement du calme et de la verdure environnante. Des parkings en sous-sol ainsi qu’un local à vélos sont disponibles. Contactez dès maintenant un de nos conseillers pour découvrir tous nos appartements neufs à Choisy-le-Roi et être parmi les premiers à choisir le logement neuf de vos rêves aux portes de Paris !
Autres logements T2 du programme "Programme neuf Choisy-le-Roi (94600)"
| Disponibilité | Prix | No | Genre | Pièces | Surface | Étage | Disponibilité | Prix | ||
|---|---|---|---|---|---|---|---|---|---|---|
| Voir | Disponible | 267 000€ | A004 | Appt. | T2 | 47.11m2 | 0-RDC | Disponible | 267 000€ | Voir |
| Voir | Disponible | 249 000€ | A102 | Appt. | T2 | 41.2m2 | 1er | Disponible | 249 000€ | Voir |
| Voir | Disponible | 253 000€ | A202 | Appt. | T2 | 41.2m2 | 2ème | Disponible | 253 000€ | Voir |
| Voir | Disponible | 234 000€ | A204 | Appt. | T2 | 38.77m2 | 2ème | Disponible | 234 000€ | Voir |
| Voir | Disponible | 244 000€ | A205 | Appt. | T2 | 39.17m2 | 2ème | Disponible | 244 000€ | Voir |
| Voir | Disponible | 258 000€ | A302 | Appt. | T2 | 41.2m2 | 3ème | Disponible | 258 000€ | Voir |
| Voir | Disponible | 238 000€ | A304 | Appt. | T2 | 38.77m2 | 3ème | Disponible | 238 000€ | Voir |
| Voir | Disponible | 263 000€ | A402 | Appt. | T2 | 41.2m2 | 4ème | Disponible | 263 000€ | Voir |
| Voir | Disponible | 243 000€ | A404 | Appt. | T2 | 38.77m2 | 4ème | Disponible | 243 000€ | Voir |
| Voir | Disponible | 248 000€ | A405 | Appt. | T2 | 39.17m2 | 4ème | Disponible | 248 000€ | Voir |
| Voir | Disponible | 266 000€ | B203 | Appt. | T2 | 41.93m2 | 2ème | Disponible | 266 000€ | Voir |
| Voir | Disponible | 272 000€ | B303 | Appt. | T2 | 41.93m2 | 3ème | Disponible | 272 000€ | Voir |
| Voir | Disponible | 289 000€ | B501 | Appt. | T2 | 48.81m2 | 5ème | Disponible | 289 000€ | Voir |