Prix
Type
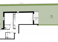
Appt. au 2ème
Appt. au 2ème
Pièces
T2
T2
Surface
45.9 m²
45.9 m²
Exposition
Ouest
Ouest
Ville
Chennevières-sur-Marne (94430)
Chennevières-sur-Marne (94430)
Livraison
1er trimestre 2027
1er trimestre 2027
Informations
01 81 80 39 10
01 81 80 39 10
Présentation du programme "L'Opaline"
Le programme immobilier neuf L'Opaline s'invite en lisière du centre-ville et de ses commodités. Les bus à proximité relient rapidement les gares RER A et RER E des communes voisines. Sans oublier l'Altival qui offrira dès 2025 une connexion aisée avec la ligne 15 Sud du Grand Paris Express en gare de Bry-Villiers-Champigny. Programme RE 2020 proposant des appartements à double orientation dès le 2 pièces. Jardin potager partagé.
Autres logements T2 du programme "L'Opaline"
| Disponibilité | Prix | No | Genre | Pièces | Surface | Étage | Disponibilité | Prix | ||
|---|---|---|---|---|---|---|---|---|---|---|
| Voir | Disponible | A103 | Appt. | T2 | 47.2m2 | 1er | Disponible | Voir | ||
| Voir | Disponible | A105 | Appt. | T2 | 48.9m2 | 1er | Disponible | Voir | ||
| Voir | Disponible | A201 | Appt. | T2 | 45.6m2 | 2ème | Disponible | Voir | ||
| Voir | Disponible | A203 | Appt. | T2 | 46.7m2 | 2ème | Disponible | Voir | ||
| Voir | Optionné | B001 | Appt. | T2 | 45.9m2 | 0-RDC | Optionné Mais pas encore vendu 😉 | Voir | ||
| Voir | Disponible | B203 | Appt. | T2 | 48m2 | 2ème | Disponible | Voir | ||
| Voir | Disponible | C202 | Appt. | T2 | 45.1m2 | 2ème | Disponible | Voir | ||
| Voir | Disponible | D101 | Appt. | T2 | 36.4m2 | 1er | Disponible | Voir | ||
| Voir | Disponible | D103 | Appt. | T2 | 45.5m2 | 1er | Disponible | Voir | ||
| Voir | Disponible | D202 | Appt. | T2 | 37.6m2 | 2ème | Disponible | Voir | ||
| Voir | Disponible | D203 | Appt. | T2 | 48.9m2 | 2ème | Disponible | Voir | ||
| Voir | Disponible | C106 | Appt. | T2 | 40.6m2 | 1er | Disponible | Voir | ||
| Voir | Disponible | A001 | Appt. | T2 | 48.7m2 Le bon plan | 0-RDC | Disponible | Voir |

