Prix
212 800€
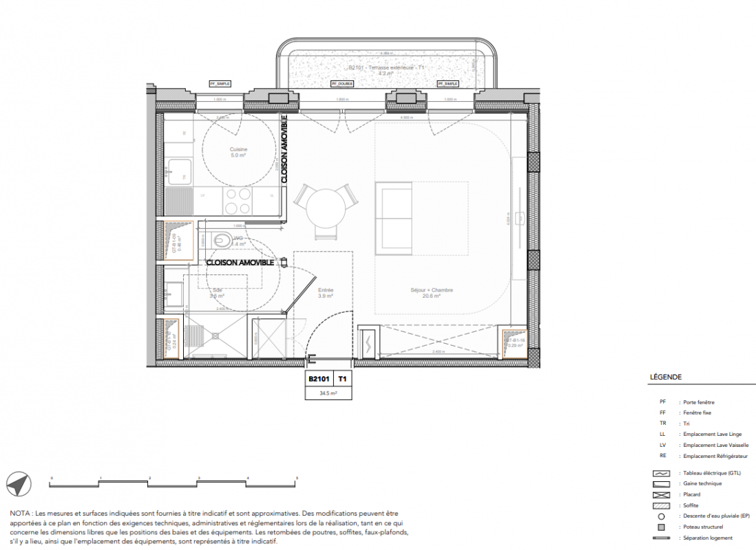
Type
Appt. au 2ème
Pièces
Studio
Surface
34.5 m²
Exposition
-
Ville
Bry-sur-Marne (94360)
Livraison
1er trimestre 2028
Informations
01 81 80 39 10

Présentation du programme "LE 7ème ART"


Structure en poteaux-poutres bois, alliée à du hêtre de Normandie, des résineux du Jura et des pierres massives du bassin parisien
Matériaux biosourcés locaux, labellisés Bois de France et certifiés PEFC
Façades en pierre locale, qualitatives et pérennes
Respect des objectifs bas-carbone fixés pour la construction neuve
Architecture vertueuse pour l'environnement

Autres logements Studio du programme "LE 7ème ART"

Disponibilité Prix Genre Pièces Surface Étage
Voir
Disponible
215 700€ Appt. Studio 34.5m2 1er
DO NOT CLICK