Prix
196 000€
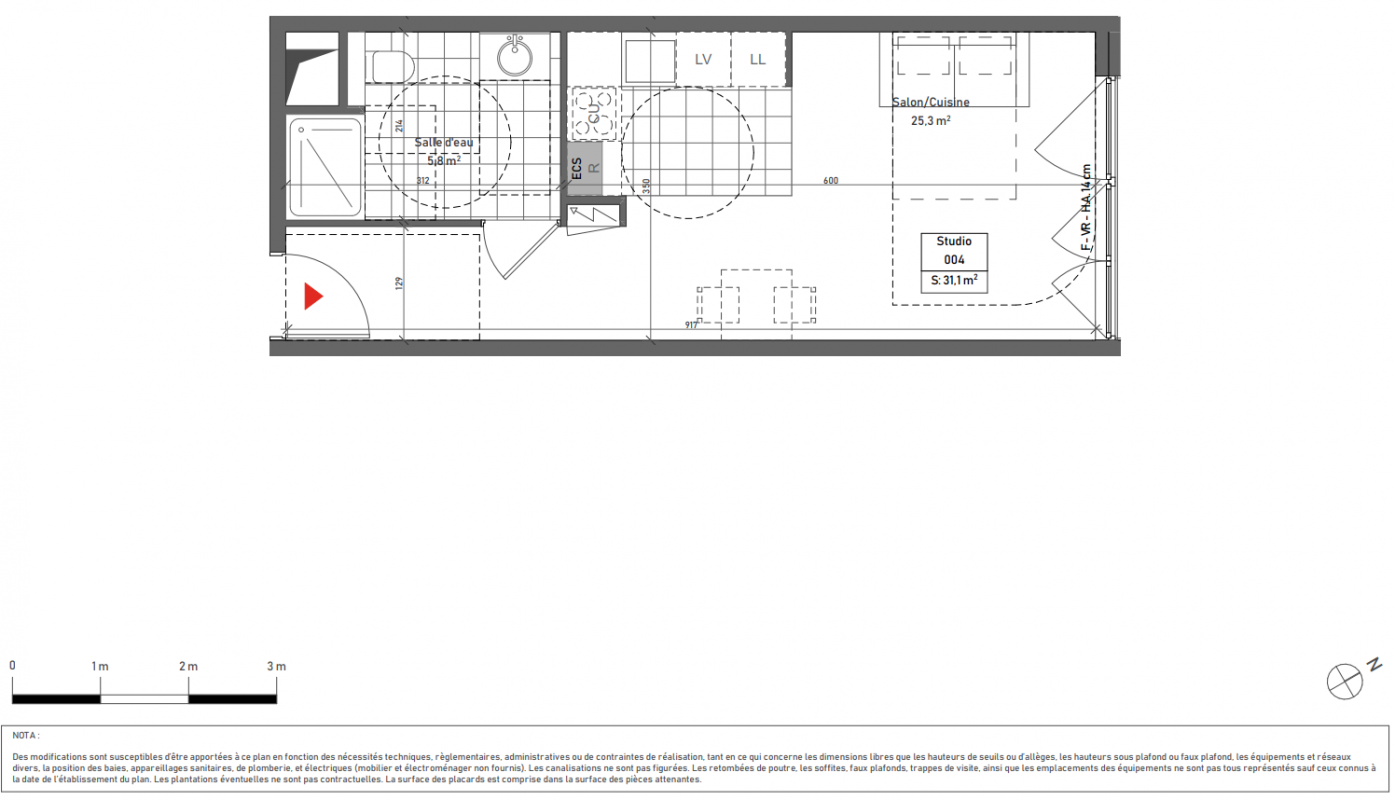
Type
Appt. au 0-RDC
Pièces
Studio
Surface
31.1 m²
Exposition
-
Ville
Cormeilles-en-Parisis (95240)
Livraison
2ème trimestre 2025
Informations
01 81 80 39 10

Présentation du programme "HEKA"

Au coeur de Cormeilles-En-Parisis et à 2 pas du marché et des commerces, découvrez notre nouvelle résidence HEKA. Charme, style et lumière pour une résidence d'exception ! Clin d'oeil à son passé, la résidence porte le nom d'une divinité égyptienne symbole de santé et bien-être puisque la résidence est la réhabilitation de l'ancienne clinique de Parisis. Laissez-vous charmer par le confort d'un nouvel habitat, qui ouvre une nouvelle histoire en plein coeur de Cormeilles-en-Parisis ! Une crèche verra le jour au rez-de-chaussée de cette future résidence.

La maquette de la résidence est disponible ici : https://prg.realtydigital.fr/732/floors/1026/3356#/

SYNTHESE DE L'OFFRE D'INVESTISSEMENT
- Une résidence à taille humaine de 39 logements et un pôle médical en rez-de-chaussée.
- Une réalisation de standing à l'architecture moderne et soignée
- Des appartements du studio au 5 pièces lumineux et spacieux, avec balcons, terrasses ou loggias
- Un quartier prisé avec ses commerces, ses services et son marché, ainsi qu'une proximité immédiate des établissements scolaires, de la maternelle au lycée

Autres logements Studio du programme "HEKA"

Pas de logements disponibles
DO NOT CLICK