Prix
466 350€  (TVA 20%)
410 000€  (TVA 5.5%)
Type
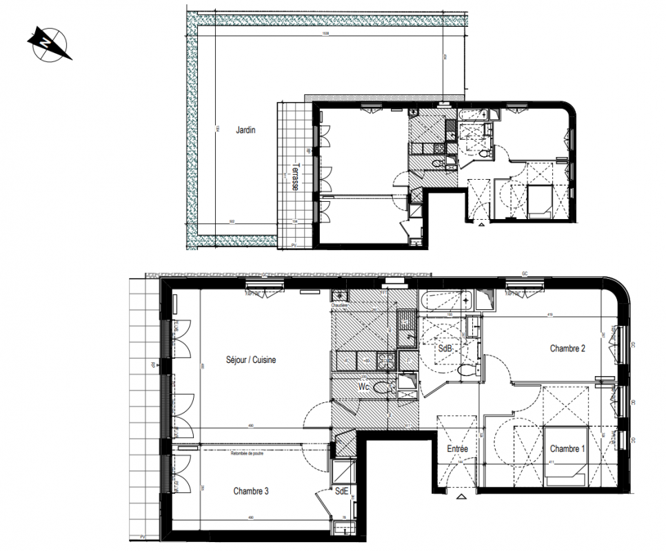
Appt. au 0-RDC
Pièces
T4
Surface
85 m²
Exposition
Sud-Est
Ville
Bezons (95870)
Livraison
1er trimestre 2027
Informations
01 81 80 39 10

Présentation du programme "LES JARDINS ALBERT 1ER"

Découvrez votre nouvelle adresse, à Bezons, à quelques minutes du centre-ville ! La réalisation propose un choix d'appartements du studio au 5 pièces duplex, aux espaces généreux avec balcons, terrasses ou loggias ainsi que des places de stationnement. Au calme d'un quartier résidentiel vous profiterez d'un cadre de vie idéal avec de vastes espaces arborés. La résidence vise la certification RE2020 gage de confort et d'économies d'énergie au quotidien et bénéficie de la proximité immédiate d'un nouvel établissement scolaire et d'un centre de santé venant compléter les commerces du centre-ville accessible à pied pour votre plus grand confort. La ligne T2, offrant un accès direct à la gare de la Défense en 15 minutes se trouve à 1km.

Autres logements T4 du programme "LES JARDINS ALBERT 1ER"

Disponibilité Prix Genre Pièces Surface Étage
Voir
Disponible
428 814€ Appt. T4 77m2 1er
DO NOT CLICK