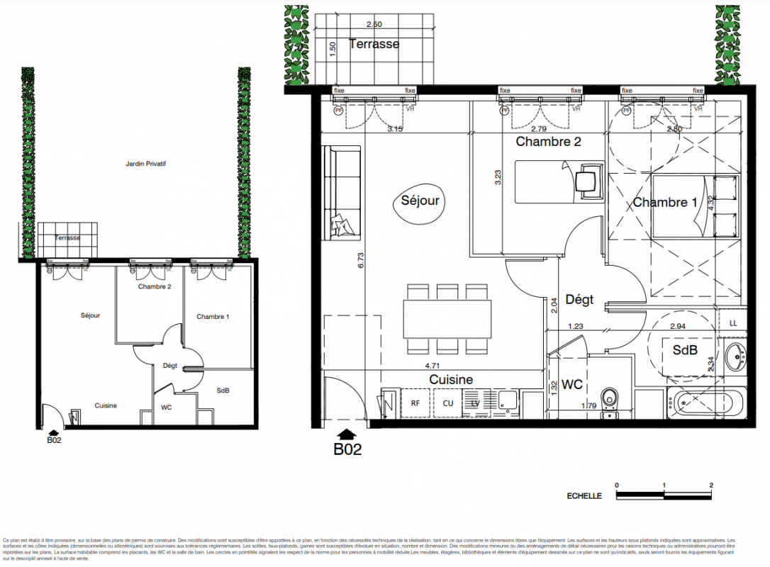
275 000€
Appt. au 0-RDC
T3
57.53 m²
-
Aulnay-sous-Bois (93600)
2ème trimestre 2028
01 81 80 39 10
Présentation du programme "LE FLOREAL"
CONFORT
Revêtement de sol en lames PVC esprit parquet.
Système hybride pompe à chaleur et chaudière au gaz pour l’eau chaude et le chauffage.
Chapes acoustiques.
Salles de bains et salle d'eau équipées avec carrelage, faïences, meuble vasque avec miroir et bandeau lumineux.
Radiateurs sèche-serviettes, dans les salles de bains.
Menuiseries extérieures en aluminium à l'extérieur, double vitrage et volets roulants motorisables.
Parties communes et halls d'entrée décorés par notre architecte d'intérieur.
Locaux vélos et poussettes.
Ascenseurs desservant tous les étages.
SÉCURITÉ
Accès au sous-sol sécurisé par connecteur à clé, vigik ou code.
Accès à la résidence sécurisé par un SAS, par digicode, visiophone et badge Vigik.
Porte palière avec serrure de sûreté 3 points A2P*.
QUALITÉ
Façades traitées avec des matériaux de qualité : brique, enduit et zinc en façade, menuiseries en aluminium.
Programme conforme à la RE2020(1).