Ce lot n’est plus disponible chez VIANOVA ou est vendu.

Vous pouvez revenir dans 24h pour vérifier le stock à jour ou contacter un conseiller Vianova pour vérifier le stock en direct.
Vous pouvez également continuer votre recherche sur notre site « ici ».

Prix
164 500€
Type
Appt. au 2ème
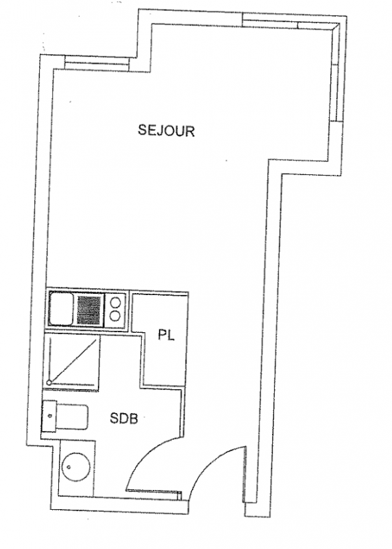
Pièces
Studio
Surface
21.83 m²
Exposition
-
Ville
Paris 13ème (75013)
Livraison
1er trimestre 2024
Informations
01 81 80 39 10

Présentation du programme "(studea) Résidence Étudiante Studéa Paris Grande Bibliothèque"

Descriptif résidenceEn plein cœur du 13e arrondissement et proche des berges de la Seine, cette résidence offre un cadre idéal pour les études et la découverte culturelle.A 10 minutes à pieds de la bibliothèque François Mitterrand, et proche des bibliothèques universitaires du campus Grands Moulins et Sorbonne, les étudiants ont accès à de nombreuses ressources pour suivre leurs études.Le campus de Jussieu et l’école de Chimie sont accessibles à pieds depuis cette résidence.Descriptif gestionnaireDepuis sa création en 1987, Studéa s’est imposée comme un acteur incontournable dans le domaine des résidences étudiantes en France et a su s’adapter aux évolutions du marché.Nexity Studéa se positionne comme un acteur solide et en constante expansion, fièrement porté par des valeurs telles que la proximité, le bien-être et la responsabilité. L’approche de Nexity Studéa combine les rôles de promoteur et de gestionnaire, assurant une offre de logements modernes et bien équipés : studios et appartements meublés, espaces communs, sécurité, Internet haut débit et salles de sport. Ces résidences, implantées stratégiquement dans diverses localités, répondent aux besoins spécifiques des étudiants, qu’ils soient dans les grandes métropoles universitaires ou dans les villes de province.Extrait du bail commercial Obligations du Preneur (NEXITY STUDEA)• Entrée en jouissance et entretien :Prendre les lieux dans l'état où ils se trouvent à l'entrée en jouissance.Entretenir les locaux et le mobilier en bon état d’entretien et de réparation locative.Restituer les locaux en bon état à la fin du bail.• Charges et travaux :Payer les charges récupérables, les services de para-hôtellerie, et les frais de gestion de l’immeuble.Contribuer aux travaux de rénovation pour un montant défini sur le projet de bail si plan de travaux précisé.• Assurances :Souscrire des assurances couvrant les risques d'incendie, d'explosion, de vols, de dégâts des eaux, et de responsabilité civile.• Sous-location et cession :Peut sous-louer ou céder le bail, mais doit informer le bailleur et rester garant jusqu’à la fin de la première période du bail.• Autres obligations :Installer et entretenir les enseignes et décorations extérieures.Respecter le règlement de copropriété et le règlement intérieur.Obligations du Bailleur (PROPRIETAIRE(S))• Délivrance et jouissance paisible :Assurer la jouissance paisible des locaux et permettre un usage conforme à la destination du bail.Interrompre le versement du...

Autres logements Studio du programme "(studea) Résidence Étudiante Studéa Paris Grande Bibliothèque"

Pas de logements disponibles