Prix
214 000€
Type
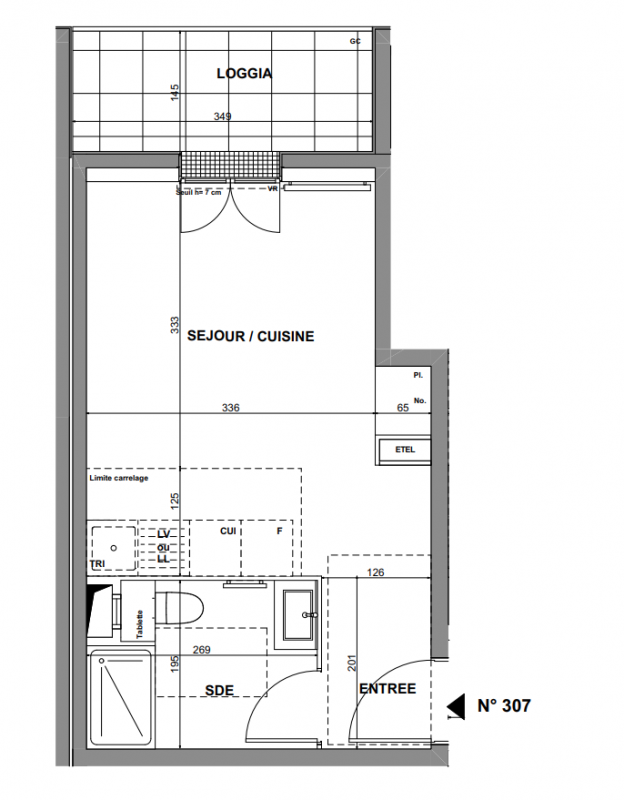
Appt. au 0-RDC
Pièces
Studio
Surface
24.26 m²
Exposition
Nord
Ville
Bourg-la-Reine (92340)
Livraison
3ème trimestre 2028
Informations
01 81 80 39 10

Présentation du programme "LA FAIENCERIE"

À Bourg-la-Reine, devenez propriétaire d'un appartement neuf de qualité au cœur d'une résidence contemporaine à l'architecture soignée !  Découvrez un cadre de vie privilégié où la nature a une place importante notamment grâce à un parc de plus de 8 000 m², situé au pied de la résidence. À quelques pas des écoles, des commerces et des infrastructures de la ville, l’adresse conjugue centralité et quiétude, un équilibre précieux en petite couronne parisienne. La gare RER se situe à 10 minutes à pied. Du studio au 3 pièces, les appartements sont lumineux, prolongés d’un espace extérieur privatif et pensés pour offrir confort, au quotidien. Un environnement privilégié, idéal pour habiter dans cette commune recherchée de la petite couronne parisienne.

Autres logements Studio du programme "LA FAIENCERIE"

Disponibilité Prix Genre Pièces Surface Étage
Voir
Disponible
216 000€ Appt. Studio 24.26m2 1er
Voir
Disponible
218 000€ Appt. Studio 24.26m2 2ème
DO NOT CLICK