269 000€
Appt. au 3ème
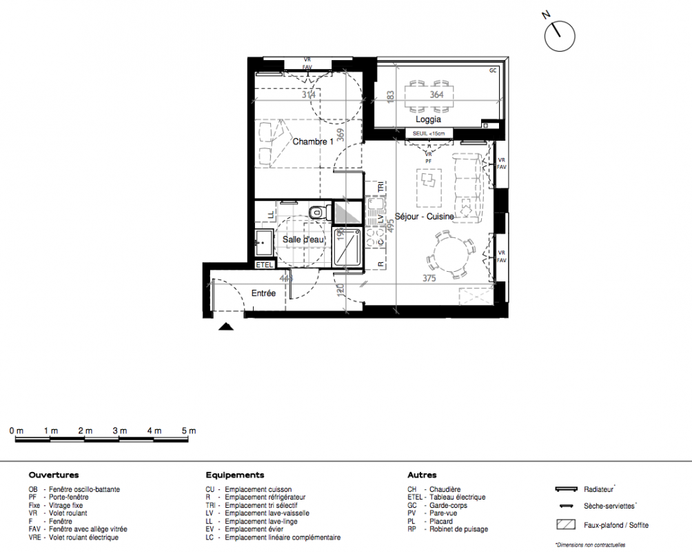
T2
40.12 m²
Est
Massy (91300)
4ème trimestre 2028
01 81 80 39 10
Présentation du programme "LES IRIS"
NOUVEAU À MASSY (91) – Dans le quartier Canopée, au plus près de la nature, VINCI Immobilier vous invite à découvrir LES IRIS, la dernière résidence réalisée au cœur du Parc de Vilgénis. Du 2 au 5 pièces, les appartements, aux prestations soignées, bénéficient tous d’espaces extérieurs généreux : balcons, loggias, terrasses et attiques offrant des vues dégagées sur le parc. Vous serez séduits par une vraie vie de quartier avec des commerces, écoles et services à deux pas. Les gares RER B/C, Tram T12 et TGV (à 1,2 km), vous permettent de rejoindre les pôles d’activités voisins en quelques minutes et Paris en 30 minutes. L’arrivée prochaine du métro 18 du Grand Paris Express complètera cette offre pour faciliter davantage vos déplacements. Pour votre confort et votre sécurité, la résidence sera certifiée NF Habitat HQE et raccordée au réseau de chaleur. Espace de vente sur site angle rue Jérôme Bonaparte/allée Caroline Aigle. Contactez l’un de nos conseillers pour obtenir plus d’informations !
Autres logements T2 du programme "LES IRIS"
| Disponibilité | Prix | No | Genre | Pièces | Surface | Étage | Disponibilité | Prix | ||
|---|---|---|---|---|---|---|---|---|---|---|
| Voir | Disponible | 233 000€ | A001 | Appt. | T2 | 38.44m2 | 0-RDC | Disponible | 233 000€ | Voir |
| Voir | Disponible | 227 000€ | A002 | Appt. | T2 | 37.8m2 | 0-RDC | Disponible | 227 000€ | Voir |
| Voir | Disponible | 240 000€ | A101 | Appt. | T2 | 38.44m2 | 1er | Disponible | 240 000€ | Voir |
| Voir | Disponible | 236 000€ | B001 | Appt. | T2 | 38.56m2 | 0-RDC | Disponible | 236 000€ | Voir |
| Voir | Disponible | 270 000€ | B104 | Appt. | T2 | 40.72m2 | 1er | Disponible | 270 000€ | Voir |
| Voir | Disponible | 251 000€ | B201 | Appt. | T2 | 38.44m2 | 2ème | Disponible | 251 000€ | Voir |
| Voir | Disponible | 267 000€ | B203 | Appt. | T2 | 40.12m2 | 2ème | Disponible | 267 000€ | Voir |
| Voir | Disponible | 273 000€ | B204 | Appt. | T2 | 40.72m2 | 2ème | Disponible | 273 000€ | Voir |
| Voir | Disponible | 254 000€ | B301 | Appt. | T2 | 38.44m2 | 3ème | Disponible | 254 000€ | Voir |
| Voir | Disponible | 276 000€ | B304 | Appt. | T2 | 40.72m2 | 3ème | Disponible | 276 000€ | Voir |
| Voir | Disponible | 257 000€ | B401 | Appt. | T2 | 38.44m2 | 4ème | Disponible | 257 000€ | Voir |
| Voir | Disponible | 272 000€ | B403 | Appt. | T2 | 40.12m2 | 4ème | Disponible | 272 000€ | Voir |
| Voir | Disponible | 279 000€ | B404 | Appt. | T2 | 40.72m2 | 4ème | Disponible | 279 000€ | Voir |
| Voir | Disponible | 242 000€ | C001 | Appt. | T2 | 37.8m2 | 0-RDC | Disponible | 242 000€ | Voir |
| Voir | Disponible | 242 000€ | C002 | Appt. | T2 | 38.44m2 | 0-RDC | Disponible | 242 000€ | Voir |
| Voir | Disponible | 249 000€ | C101 | Appt. | T2 | 37.8m2 | 1er | Disponible | 249 000€ | Voir |
| Voir | Disponible | 247 000€ | C102 | Appt. | T2 | 38.44m2 | 1er | Disponible | 247 000€ | Voir |
| Voir | Disponible | 250 000€ | C202 | Appt. | T2 | 38.44m2 | 2ème | Disponible | 250 000€ | Voir |
| Voir | Disponible | 253 000€ | C302 | Appt. | T2 | 38.44m2 | 3ème | Disponible | 253 000€ | Voir |
| Voir | Disponible | 255 000€ | C301 | Appt. | T2 | 37.8m2 | 3ème | Disponible | 255 000€ | Voir |