Prix
340 000€
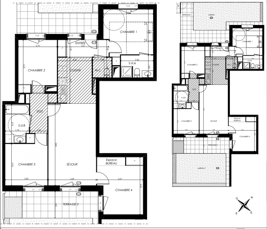
Type
Appt. au 0-RDC
Pièces
T5
Surface
89.37 m²
Le bon plan
Exposition
-
Ville
Brétigny-sur-Orge (91220)
Livraison
4ème trimestre 2027
Informations
01 81 80 39 10

Présentation du programme "Eclor"

À 30 min* de Paris, le plaisir d’habiter un écoquartier entre ville et campagneÀ 30 min* de Paris et 20 min d’Orsay, Brétigny-sur-Orge profite pleinement du rayonnement du plateau de Saclay, cluster scientifique d’envergure internationale. Cette localisation stratégique s’accompagne d’une excellente accessibilité : RER C reliant la gare d’Austerlitz en 33 min** et maillage routier entrecroisant la N104 avec la N20 et l’A6. De tels atouts confortent l’attractivité de la ville qui affiche une très forte croissance démographique et développe des projets phares comme l’écoquartier Clause Bois Badeau. Initié en 2005, il conjugue activités, commerces et parc paysager au pied de la gare. Pour les investisseurs, il constitue une occasion idéale pour réaliser un placement performant, alliant valeur patrimoniale et optimisation fiscale grâce au dispositif Pinel (zone A). * Source : Google maps** Source : ratp.fr

Autres logements T5 du programme "Eclor"

Pas de logements disponibles