Prix 
194 000€
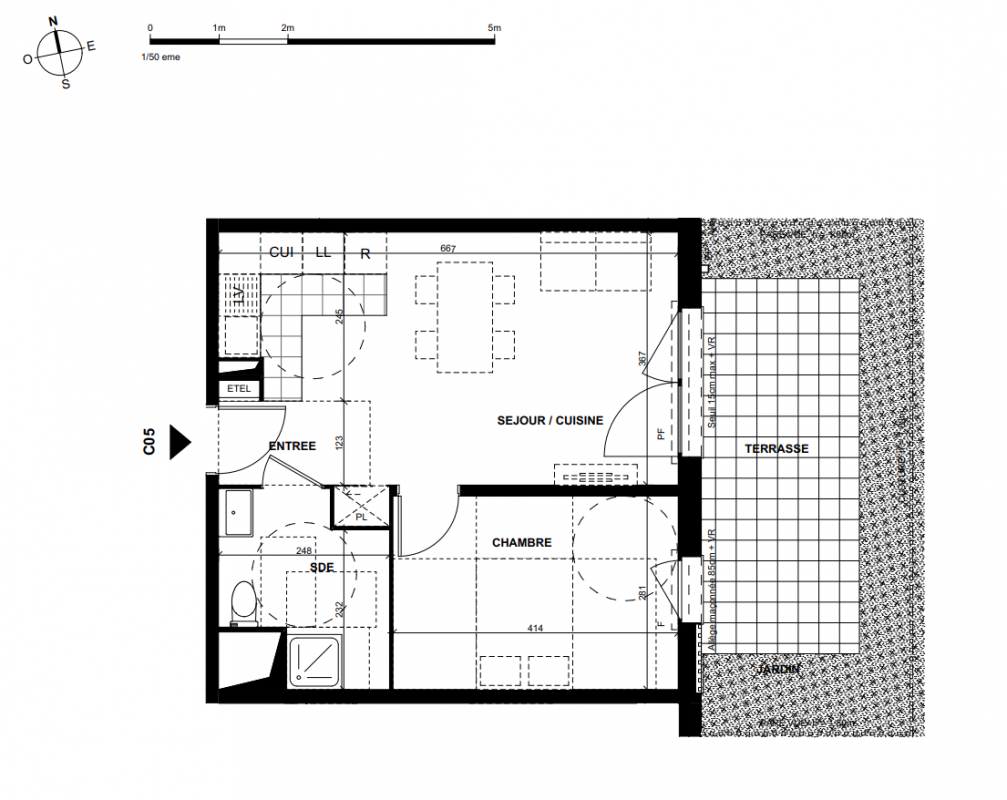
 194 000€
  Type
Appt. au 0-RDC
 Appt. au 0-RDC
  Pièces
T2
 T2
  Surface
42 m²
 42 m²
  Exposition
Est
 Est
  Ville
Bondoufle (91070)
 Bondoufle (91070)
  Livraison
4ème trimestre 2024
 4ème trimestre 2024
 Informations
01 81 80 39 10
 01 81 80 39 10
Présentation du programme "FLORAE"
En plein cœur de la ZAC GRAND PARC, découvrez une réalisation à l’architecture contemporaine composée d’appartements du 2 au 4 pièces et accompagnés de balcons, terrasses plein ciel ou jardins privatifs. A taille humaine, la résidence est répartie sur 3 bâtiments de 3 étages et profite de belles orientations Sud, Est et Ouest. La réalisation est idéalement située, à quelques pas des futurs commerces du GRAND PARC, proche de 2 arrêts de bus, de nombreux groupes scolaires et d’équipements culturels. Le centre-ville est accessible en 5 min en voiture. La résidence est certifiée BIOSOURCÉ NIVEAU.1 et RT 2012 - 20%. Un programme en co-promotion avec ATLAND.