Prix
180 600€ (TVA 20%)
158 778€ (TVA 5.5%)
180 600€ (TVA 20%)
158 778€ (TVA 5.5%)
Type
Appt. au 1er
Appt. au 1er
Pièces
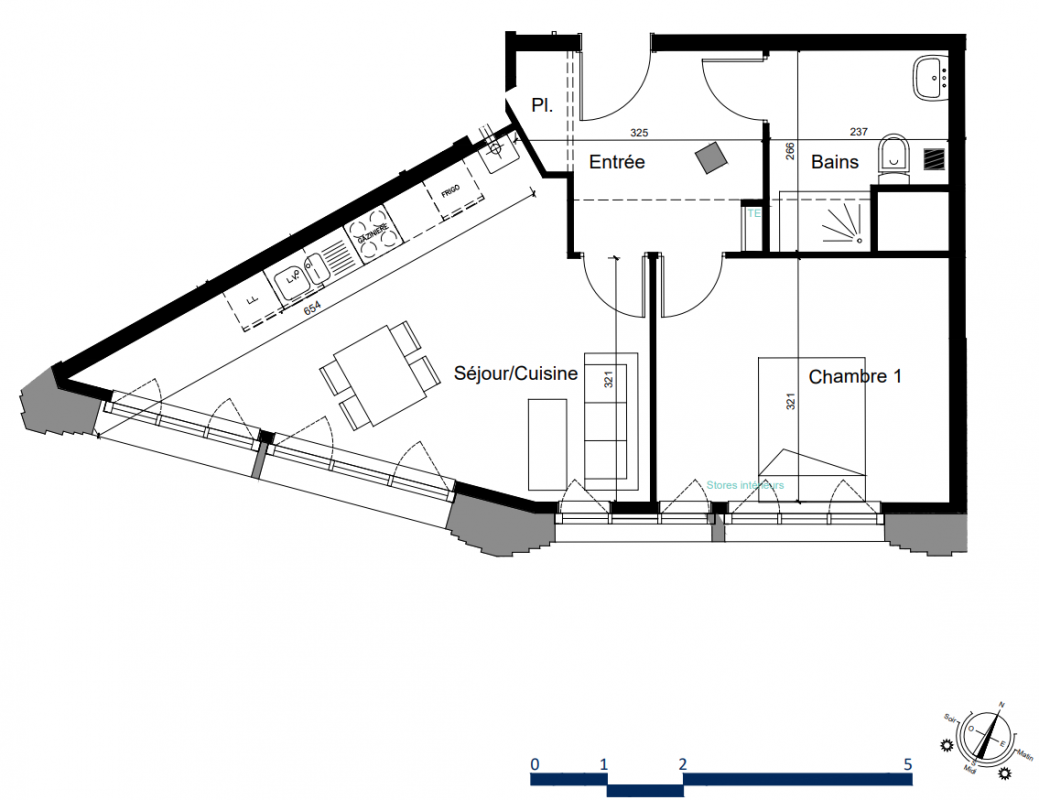
T2
T2
Surface
45 m²
45 m²
Exposition
Sud
Sud
Ville
Tourcoing (59200)
Tourcoing (59200)
Livraison
4ème trimestre 2026
4ème trimestre 2026
Informations
01 81 80 39 10
01 81 80 39 10
Présentation du programme "LA FABRIK"
Choisissez d'habiter un lieu emblématique, témoin du passé industriel de Tourcoing, aujourd'hui réinventé en un quartier vert et vivant : LA FABRIK.
Cette adresse unique propose deux derniers appartements neufs de 4 et 5 pièces, parfaits pour la vie de famille. Spacieux, lumineux et bien agencés, ils offrent un cadre de vie agréable, avec pour certains un espace extérieur. Le parking est inclus pour chaque logement.
Ce programme est éligible à la TVA réduite à 5,5%. Renseignez-vous !
Pour toutes informations complémentaires, prenez contact avec nous !