211 564€ (TVA 20%)
186 000€ (TVA 5.5%)
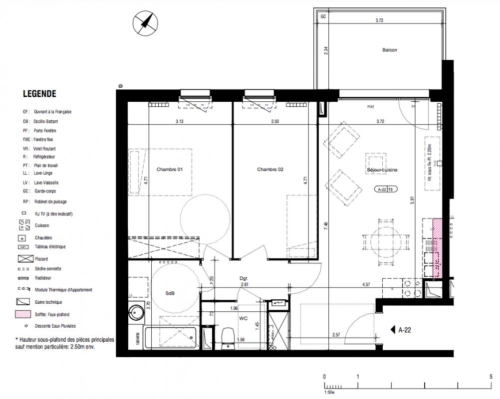
Appt. au 2ème
T3
65.25 m²
Nord-Ouest
Roubaix (59100)
3ème trimestre 2024
01 81 80 39 10
Présentation du programme "FIL'ARTY"
 BIEN VIVRE LA VILLE ! Découvrez FIL’ARTY une nouvelle résidence intimiste et contemporaine, idéalement située au cœur de Roubaix, dans un quartier de centre-ville. 
Ici, vous profitez des charmes d’une ville patrimoniale, culturelle et commerçante. A quelques pas de l’hyper centre, à 500 m du tramway, des écoles et à 5 mn des centres de magasins d’usine, vous disposez de tous les services et commodités, que ce soit pour les achats de la vie courante, les services, les loisirs, les transports… Une adresse idéale pour vous faciliter le quotidien !
La résidence FIL’ARTY propose des appartements du 2 au 4 pièces, économes en énergie, agréables à vivre, conçus pour profiter de la lumière. Chaque appartement comporte un placard d'entrée équipé, une belle pièce de vie avec cuisine ouverte, une salle de bains équipée (meuble + pare douche + sèche-serviettes), bénéficie d’un grand espace extérieur (balcon, loggia ou jardin privatif), d’une place de parking et profite de prestations confortables : sols souples, peinture aux murs, vidéophone, fibre, hall d’entrée décoré, local vélos, ascenseur…
Vous souhaitez devenir propriétaires ? Choisissez ici une adresse urbaine à quelques pas des commodités et d’un habitat abordable en profitant de la TVA réduite à 5.5% !
Ou vous souhaitez devenir investisseurs ? Réalisez ici un investissement pertinent en cœur de ville (résidence située en zone B1 Pinel. Le non-respect des engagements de location entraîne la perte du bénéfice des incitations fiscales. Investir dans l'immobilier comporte des risques). 
 
  
  
 