Prix
313 000€
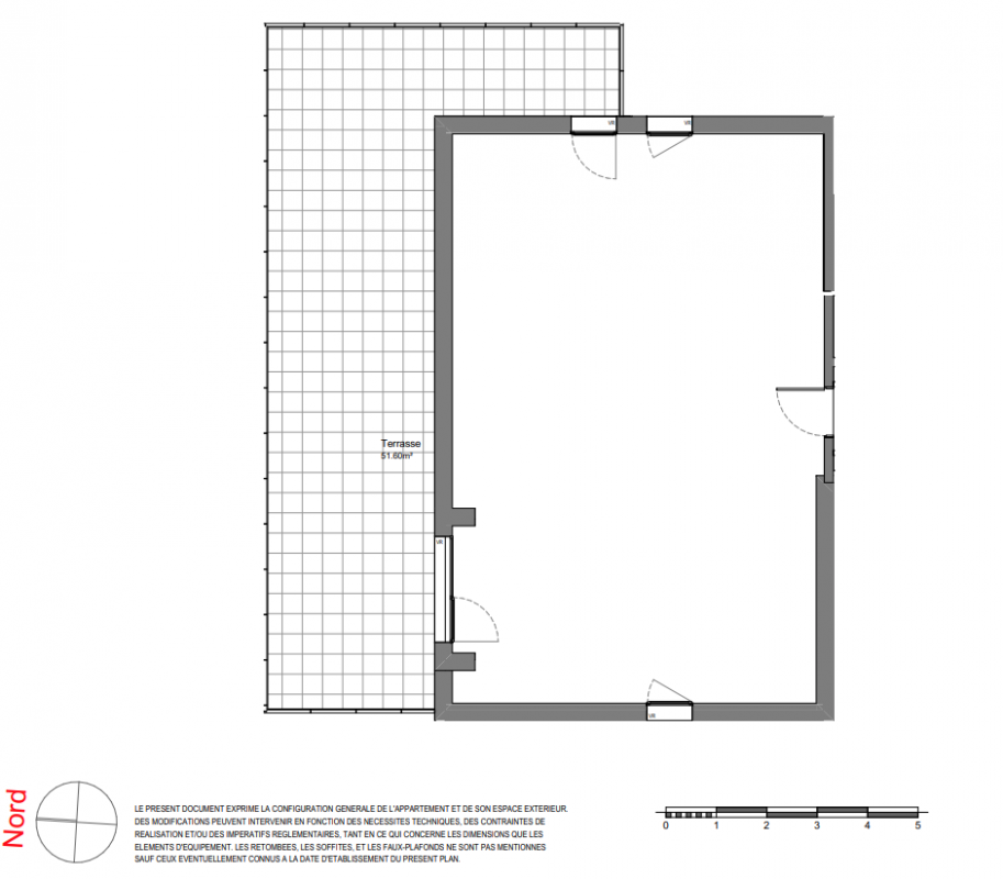
Type
Appt. au 5ème
Pièces
T4
Surface
77 m²
Exposition
Nord
Ville
Tours (37000)
Livraison
4ème trimestre 2025
Informations
01 81 80 39 10

Présentation du programme "DOMAINE DE SUEDE"

découvrez un nouveau quartier, le DOMAINE DE SU DE au nord de Tours. Cette nouvelle adresse est idéalement située proche des commerces, des écoles, des lieux de loisirs et à seulement 10 minutes du centre-ville. Un nouveau quartier, placé sous le signe de la nature en ville, allie en toute harmonie de petits ilots résidentiels et des immeubles aux hauteurs maitrisées. Domaine de suède propose des appartements du 2 au 4 avec jardin, balcon ou terrasse et où chacun dispose d'un stationnement. Une adresse de choix pour qui souhaite devenir propriétaire, réaliser un investissement patrimonial pérenne ou encore profiter des nombreux avantages d'habiter un appartement neuf confortable et économe en énergie. Pour toutes informations complémentaires, prenez contact avec nous !

Autres logements T4 du programme "DOMAINE DE SUEDE"

Disponibilité Prix Genre Pièces Surface Étage
Voir
Optionné
254 833€ Appt. T4 78m2
Le bon plan
0-RDC
Voir
Disponible
279 583€ Appt. T4 77m2 5ème