Prix
75 200€
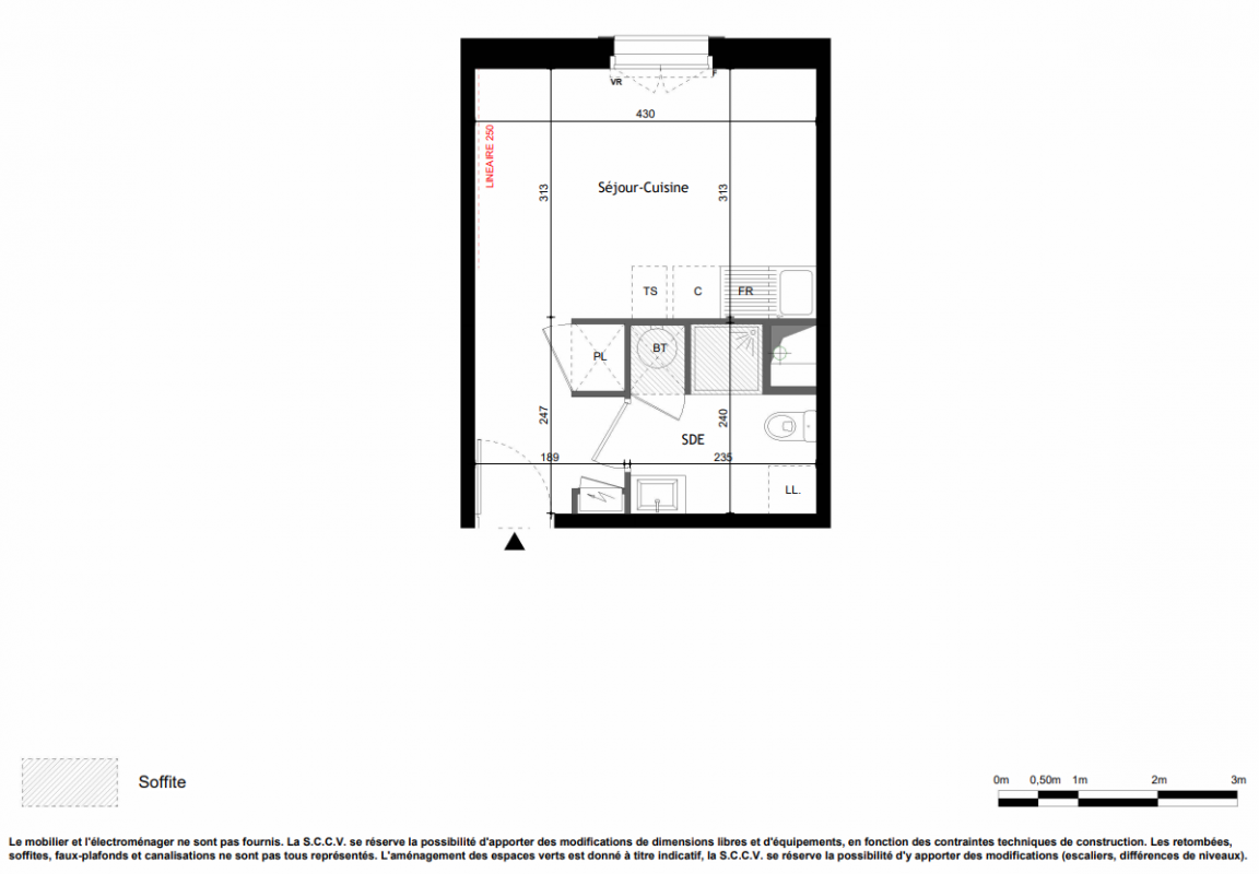
Type
Appt. au 1er
Pièces
-
Surface
22.75 m²
Exposition
Ouest
Ville
Saint-Cyr-sur-Loire (37540)
Livraison
1er trimestre 2028
Informations
01 81 80 39 10

Présentation du programme "L'éclat"





À 10 min à pied des bords de Loire
À 10 min à pied du centre-ville
Au coeur d'un quatier prisé et résidentiel


Autres logements - du programme "L'éclat"

Disponibilité Prix Genre Pièces Surface Étage
Voir
Disponible
79 200€ Appt. - 22.75m2 2ème
Voir
Optionné
68 100€ Appt. - 22.56m2 0-RDC
DO NOT CLICK