Prix
162 000€
Type
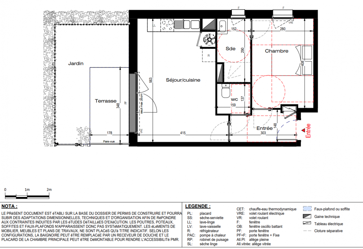
Appt. au 0-RDC
Pièces
T2
Surface
41.9 m²
Exposition
-
Ville
Ploërmel (56800)
Livraison
3ème trimestre 2027
Informations
01 81 80 39 10

Présentation du programme "LE CLOS LAENNEC"

La douceur de vivre entre tranquillité et dynamisme de la villePloërmel, située dans le Morbihan, bénéficie d’une position idéale entre Rennes et Vannes, offrant un cadre de vie paisible tout en restant proche des grands axes. La ville connaît une croissance économique significative, avec un marché immobilier en plein essor et une forte demande locative. Investir à Ploërmel présente un potentiel de rentabilité intéressant, que ce soit pour l’achat de résidences principales ou de biens destinés à la location. La résidence « Le Clos Laënnec », une situation exceptionnelle au cœur de la ville de Ploërmel, entre ville et nature.Découvrez votre future résidence de 49 appartements offrant un véritable écrin végétal en ville et une adresse proche de tout, pour un quotidien simplifié. A proximité immédiate du centre-ville historique et du centre hospitalier, la philosophie du « Clos Laënnec » est d’offrir une identité forte à travers une architecture proposant une alternance de matériaux et un cœur d’îlot intimiste. Cette résidence sécurisée de deux bâtiments propose 49 appartements, prêts à vivre. Conçus selon les normes de la réglementation environnementale 2020, ces logements ont été imaginés pour vous assurer un maximum de confort été comme hiver et de luminosité. Le Clos Laënnec, appartement Ploërmel, une résidence agréable, durable au cœur d’une ville dynamique.Appartement Ploërmel : une résidence mêlant modernité, confort et durabilité Les appartements se distinguent par des prestations de qualité et des terrasses spacieuses, pour vivre aussi bien dedans que dehors. Les appartements en rez-de-chaussée bénéficient à la fois de terrasses et de jardins aménagés.Le confort intérieur est également au cœur de nos préoccupations et de celles de notre architecte. Elégance et qualité sont les maître-mots du « Clos Laënnec ». La résidence vous offre de nombreuses prestations de qualité : volets roulants électriques, placards aménagés, menuiseries extérieures plaxées de couleur, accès sécurisé aux halls, visiophone couleur, porte palière 3 points, sèche-serviette, locaux vélos spacieux… Optez pour la praticité avec nos sols en carrelage ou stratifié, alliant esthétisme et facilité d’entretien. L’accessibilité est assurée par la présence d’un ascenseur pour les appartements, garantissant une accessibilité à tous les étages. Avec l’engagement de Presqu’île Investissement, vous bénéficiez d’un accompagnement complet tout au long de votre acquisition.Pour cette...

Autres logements T2 du programme "LE CLOS LAENNEC"

Disponibilité Prix Genre Pièces Surface Étage
Voir
Disponible
160 500€ Appt. T2 41.9m2 0-RDC
DO NOT CLICK