Prix
347 500€
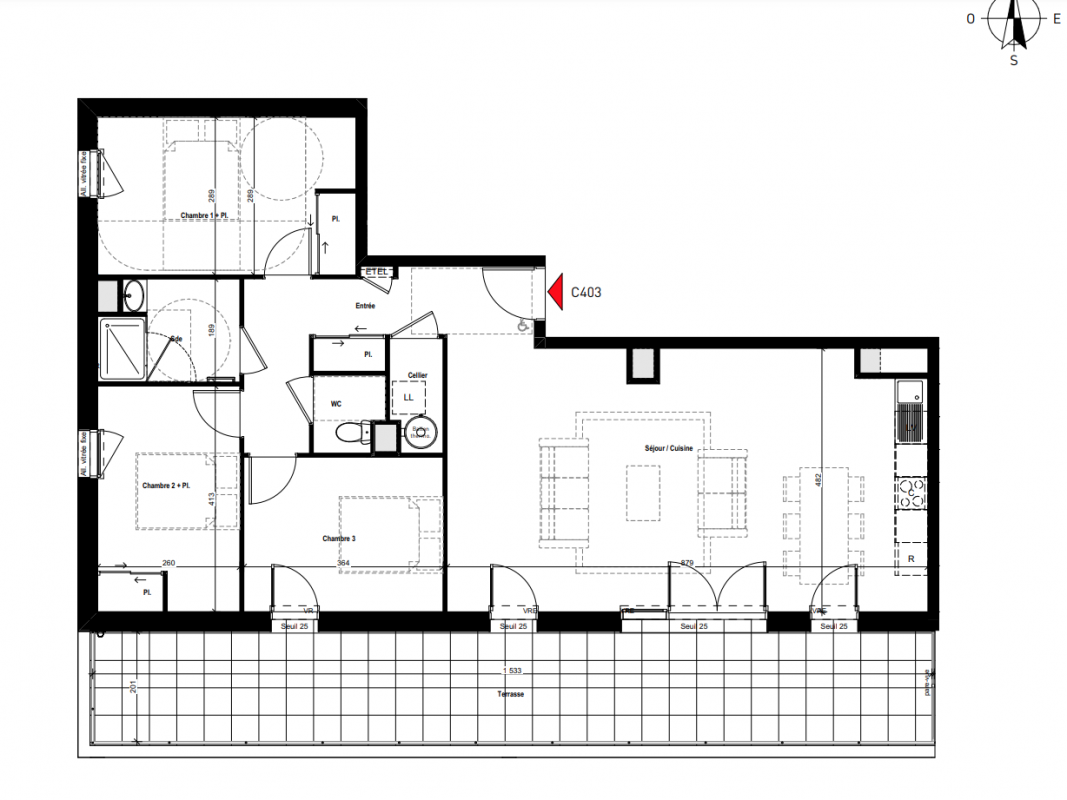
Type
Appt. au 4ème
Pièces
T4
Surface
94.04 m²
Exposition
-
Ville
Quimperlé (29300)
Livraison
2ème trimestre 2028
Informations
01 81 80 39 10

Présentation du programme "Les Hauts de Laïta"

Autres logements T4 du programme "Les Hauts de Laïta"

Disponibilité Prix Genre Pièces Surface Étage
Voir
Disponible
345 500€ Appt. T4 94.8m2 4ème