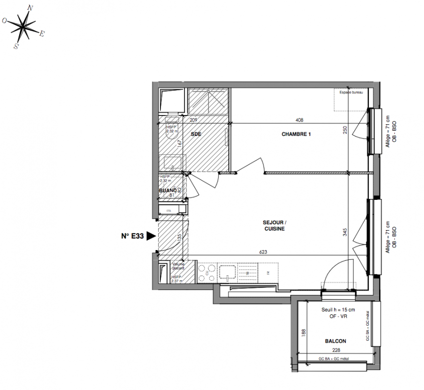
Prix
183 128€
Type
Appt. au 3ème
Pièces
T2
Surface
35 m²
Exposition
Est
Ville
Bron (69500)
Livraison
1er trimestre 2028
Informations
01 81 80 39 10

Présentation du programme "KAOLIN"

Offrez-vous une bulle d'air et de verdure en cœur de ville. Aux portes de Lyon, à Bron, cette nouvelle résidence déploie une architecture claire et chaleureuse autour d'un généreux parc intérieur. Balcons, loggias, terrasses et jardins arborés composent un ensemble pensé pour les modes de vie actifs et tournés vers l'extérieur. Les locaux vélos intégrés au paysage facilitent vos déplacements quotidiens.


Vous vivez connecté grâce aux lignes de tramway à quelques pas (et le futur T8 qui s'arrêtera au pied de votre immeuble dès 2029), aux écoles et commerces de proximité accessibles à pied. Un art de vivre sans contrainte qui respire l'authenticité lyonnaise dans un cadre verdoyant et moderne.

Autres logements T2 du programme "KAOLIN"

Disponibilité Prix Genre Pièces Surface Étage
Voir
Optionné
167 204€ Appt. T2 38.4m2 0-RDC
Voir
Optionné
195 640€ Appt. T2 41.1m2 0-RDC
Voir
Optionné
217 251€ Appt. T2 40.6m2 4ème
DO NOT CLICK